效仿|在农村建一座这样的房子,你们村会效仿吗
在农村,建房子前都是去看看十里八乡谁家的房子最好看,然后就模仿着建,要是在农村建一座下面这样的房子:错落有致的坡屋顶,高大上的落地窗,被文化石装饰着的外墙,虽然造型简单,却处处充满着时尚、现代的味道。这样的房子,会成为村里新的效仿对象吗?
【 效仿|在农村建一座这样的房子,你们村会效仿吗】

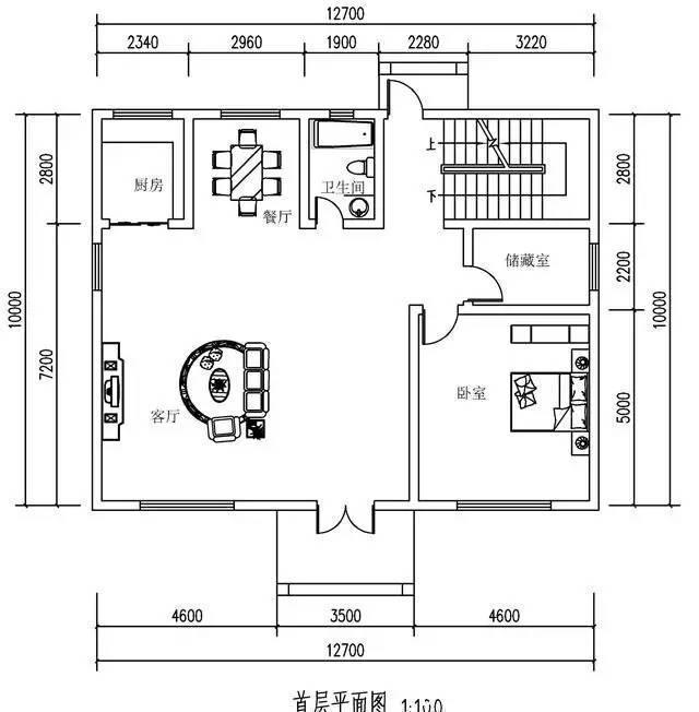
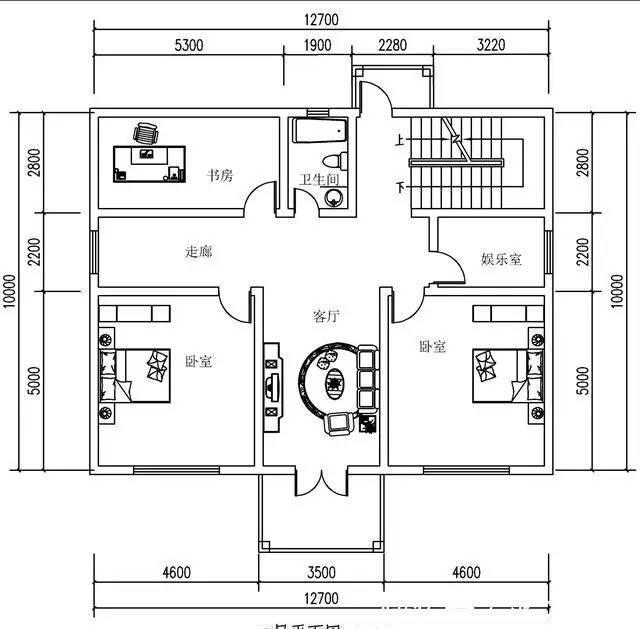
平面布局图:
此户型客厅空间较大,根据自家需求,可做成挑空客厅,也可以将上面部分做成卧室,此户型就是选择了第二种做法,以满足更多居住的需求。

此户型共有三个卧室,一层一个位老人房,二层两个,并配有书房和娱乐室,适合年轻人居住。

在农村建一座这样的房子,你们村会效仿吗?
推荐阅读
- 融创中国|融创全年销售金额5973.6亿元,问题在于,融创商票已开始逾期!
- 乡亲们|农村民风淳朴,乡亲们还特别好客,去过一回你就知道啦!
- 碧桂园|开春探市|锦绣蘭院:现场来访较少,在售房源均价24826元/㎡
- 实拍|实拍农村自建别墅10栋,多看看别人建房,才不会吃亏!
- 深圳市|花172万买深圳46平米,吃饭在厕所门口,客厅巴掌大,憋屈啊
- 房价|上海1930年建成的小区,今天仍在居住,房价超过10万元
- 肥东|伟星肥东县FD19-13号地块案名将在2月10日公布
- 公寓|未来5年,打折也很难卖出去的3种房子,现在入手就是“接盘侠”!
- 刘銮雄|许家印背后靠山是刘銮雄,那么你知道,碧桂园杨国强靠山是谁么?
- 居住|有堂屋还有旋转楼梯,这样的农村四层别墅,大气又实用
