建筑面积|建房预算20万起,我帮你挑了这5套中式小院,哪套更好?

方正的占地,最为经典的“四水归堂”布局,吸收现代建筑的简约之美,去繁就简,打造一座适合新农村修建居住的中式庭院。整座庭院为封闭式,给您更好的安全感,保护家人的隐私。布局上动静分区、洁污分离,满足现代人的居住方式。
【 建筑面积|建房预算20万起,我帮你挑了这5套中式小院,哪套更好?】

图纸编号:ZJ-1177占地尺寸:16m*17.5m占地面积:151.5㎡(不含庭院)建筑面积:151.5㎡(不含庭院)建筑高度:6.23m毛坯造价:20万起建筑情况:共设3卧 2厅 1厨房 3卫 2庭院 1天井

若没有充足的预算,建一座一层小院也足矣。这套设计非常适合三面有邻的宅基地,通过院墙设计,居室可自由开窗,户型南北通透,带来更好的光照和通风。在满足家人居住的前提下,我们将更多的空间留给庭院,足不出户,也能感受到四季的变幻。

图纸编号:ZJ-1353占地尺寸:25.75m×17.42m占地面积:326.6㎡建筑面积:713㎡建筑高度:10.38m毛坯造价:70万起建筑情况:设9室 1保姆房 3厅 10卫 1厨房 1玄关 1堂屋 1茶室

宽敞的宅基地,恢弘的中式宅院,不菲的造价,这栋中式合院将中式的美体现得淋漓尽致!翘起的屋角,弯转如半月,使得庄严稳重的中式建筑有了一丝灵动、活泼之美。室内布局非常适合农村大家庭居住,既然要建,就要建一栋真正可传承的房子!



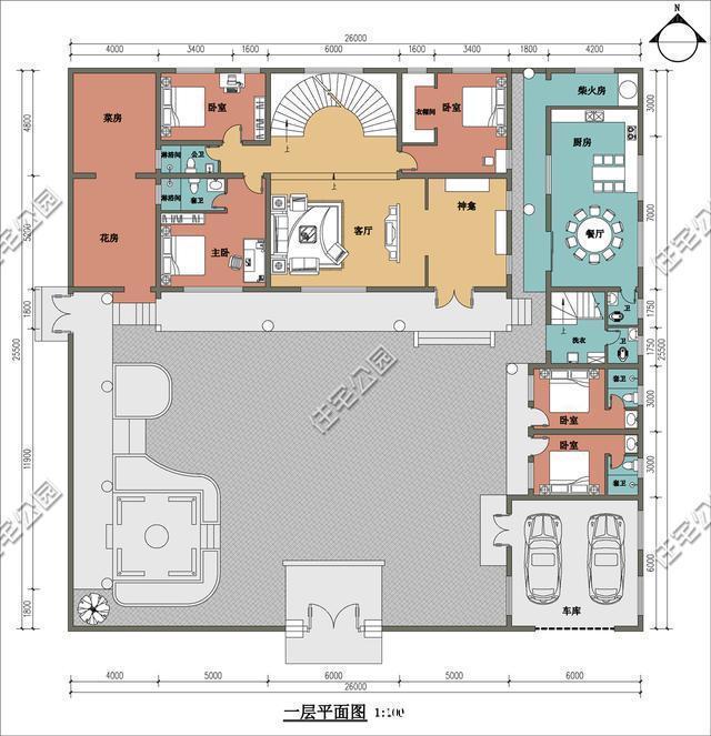
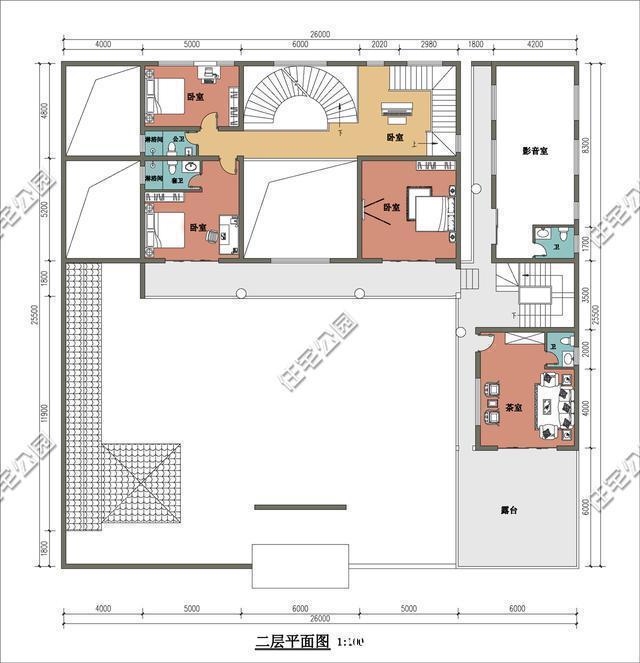
图纸编号:ZJ-1320占地尺寸:26×25.5m占地面积:324㎡建筑面积:736㎡建筑高度:13.646m毛坯造价:75万起建筑情况:9卧 2厅 11卫 1厨 1露台 1车库 1花房 1菜房

推开厚重的木门,这座中式合院引入眼帘,入院便是经典照壁设计,避免开门见山,给您一家带来更好的运势。庭院内布置亭台,好友来时在此品茶、叙旧,实在享受!房屋左侧为西厢房,正中为主房,主房布置神龛、客厅、主卧,厢房布置厨房、餐厅、客卧,主次分明,打造高品质的乡村生活。



图纸编号:ZJ-1357占地尺寸:16.3m×18.1m占地面积:138㎡建筑面积:308㎡建筑高度:10.9m毛坯造价:30万起建筑情况:设5室 2厅 3卫 2厨 1玄关 1茶室 1阳台 2露台 1书房

推荐阅读
- 露台|当别墅设计遇到与父母分开住,这种主屋结合偏房建房方式,真前卫
- 非住宅|金茂服务通过港交所聆讯 总在管建筑面积2320万平方米
- 寿命|水泥寿命只有50年,那过了时间,自建房还能住吗?懂行人给出答案
- 烟道|第2次装修,坚持做了这8个家居决定,十万预算装出二三十万的效果
- 宅基地|两年前就有建房打算,现在终于要实现了,全家人都很兴奋
- 宅基地|2022农村又有“新规定”,不允许“私自建房”了?到底怎么回事?
- 舟山|回村建房就能造福几代人?“双料时代”正式来临,知情人早已准备
- 年轻人|这4种房子,就算预算再低也不要买,买了也是会后悔
- 户型|独栋三层农村别墅图片,实用多一点,适合农村的自建房
- 建筑面积|华润17.08亿元底价摘嘉兴桐乡1宗商住地 总建面达31.54万方
