牛皮纸|她家房子不大,但全屋“隐形”收纳确实惊艳,真是美观与实用兼具
现在房子装修,除了注重美观外,还讲究实用性,只有这两者兼具,这样的家住着叫舒适。这不,来自上海的一对夫妻,把一套仅50平方的家,装修到极致合理,真的是完美诠释了美观与实用兼具。
讲真的,50平方米并不大,要住得舒适,除了功能要梳理清晰外,还有就是收纳,一个家需要放的东西太多了,更何况,家里还有一个不到10岁的儿童,想要一个家看着干净整洁,那就要有良好的收纳系统,所以他们选择了全屋“隐形”式收纳,一眼望去,家里清清爽爽,打开柜体,林林总总的居家物品填得满满当当,全是生活气息。
在此之前,沐宸先来给大家看看一下布置。

图/王恒设计

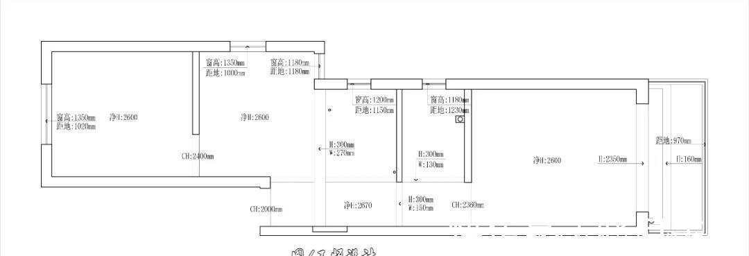
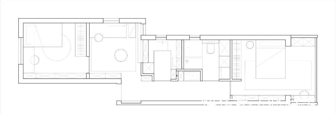
这套50平方的小家,就是一个长约15米的“一”字形结构,南北两间卧室,中间客厅与卫生间等,看似中规中矩,实则框住了居住范围,在不能大动的情况下,只有通过细节来弥补,上面就是原始户型图与平面布置,下面跟我一起去看实景!


开门即是长走道,它
连接了玄关到主卧、中间是卫生间和厨房以及起居室
,所以作为家里的第一景,不仅要把采光差给弥补,还要实用好看,现在的顶面装有漫反身灯光,让空间十分温暖大方。还有就是卫生间干区设置在走道里,正是有了它,打破了沉闷墙体带来的视觉硬性阻碍,让空间更觉得通透。
客厅

小客厅给我的感受就是小而温暖,以灰、白、原木色的经典色彩搭配,营造自然舒适的家居氛围。


客厅妙就妙在舍弃了茶几功能,但在右边墙面定制出一排层板,可以放茶杯还有音响等,照顾到居住者的生活起居习惯,而且减少了家具后,空间更加开阔。坐在沙发左边的人,同样也可以把杯子放在左边的边柜,通过这些细节设计,给生活创造便利。

基于空间太小,这里还是一家人的用餐区,平时把餐桌折叠起来,放在沙发边上,需要用餐时才打开。尽管有这个餐桌,但他们还是在墙上制作了可折叠层板。
厨房掏洞
【 牛皮纸|她家房子不大,但全屋“隐形”收纳确实惊艳,真是美观与实用兼具】

在厨房墙上掏了个洞,与客厅形成更佳的互动效果,把可折叠层板打开,女主人就可以通过洞递出美食,让家人可以及时享受。
收纳满分的厨房

来到厨房,能看见大片白色柜体采用无把手的按压式设计,缓解了厨房的繁杂感,一眼望去是如此干净整洁。
推荐阅读
- 套房子|135㎡的真实案例,告诉你养老房要装中式风,20万就能给老人体面
- 合同|交房子千万别不当回事,只要检查这4处,开发商吓得魂飞魄散
- 本案|她家73㎡的房子,客餐厅装修得真心漂亮,最满意全屋定制的柜子
- 清洁|建议大家:不管房子大小,给家里添置这些小用品,幸福感很强!
- 宅基地|农村有房的注意了下半年这5种情况,房子可能会被拆除
- 济南|2022年这几类房子你千万别碰
- 学区房|放弃学区房,花6个月在乡下盖栋房子,带着2个孩子过上理想的生活
- 李女士|房子只有26楼高,却卖27楼了,开发商退款可以你得赔违约金
- 房价|无论房价是上涨是下跌,无论是否刚需,这五类人都很难买到房子
- 轻奢风|看了她家的轻奢风装修,羡慕了,全屋低调、内敛又不失高贵和奢华
