
▲厨房吊柜底部还嵌入了灯带,为操作台面带来了明亮的空间,避免昏暗的生活体验。
卧室

▲卧室床头墙以蓝色与白色的拼色设计,布置暗粉色的皮艺床与窗帘,蓝与粉的空间搭配上净白的床单与墙面,营造出一种安静优雅的浪漫气质感。

▲床尾位置布置一个梳妆台与圆凳,台面上布置球形台灯与圆形的梳妆镜,也为女主人梳妆打扮提供了舒适方面的空间。
多功能书房

▲书房整体墨绿色的墙面+人字铺木地板的空间,摆上金属休闲椅、休闲沙发床、布置吉他,做成一个集了休闲、书房、客房的多功能空间,虽小却也充满精致感。

▲圆形森系地毯,墙上时尚的挂画组合,让书房充满精致优雅的高级与华丽气质。
卫生间

▲卫生间以花砖地面+小六边砖墙面的组合,在空间内加入了马桶、淋浴房、洗手盆的基础,还在角落加入了叠放的洗衣机+烘干机组合,也让卫浴空间更加实用情趣而文艺。

▲雅白台面的台上洗手盆,墙身以灰色防水漆材质挂上一面椭圆形的金属框镜子,加入金属质感的五金细节装饰,也让卫浴空间充满精致高级的质感。
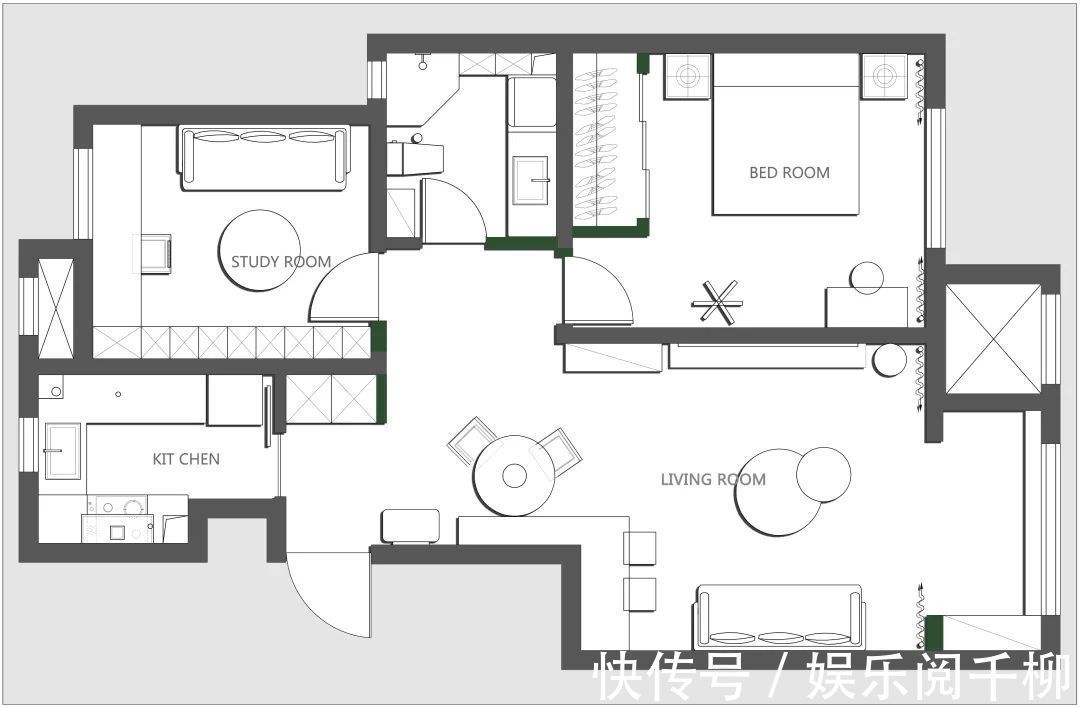
平面布置图

【 文艺|128㎡现代轻奢,稳重配色+文艺布置,让生活充满诗意与情趣】设计:清和一舍 ,点评:设计馆
推荐阅读
- 改造|90㎡两居室改造,从餐厅厨房挤出一间房,真心巧妙
- 空间|45㎡小户型学区房,爆改后“小中见大”,整个家被一眼望穿
- 轻奢|轻奢风格设计,120㎡装修效果明艳四方,越看越有格调!
- 储物区|90㎡两室一厅,看完她的家,我觉得一半设计师都要失业了!
- 阳台|同样是77㎡,我家小得可怜,他家三房每个空间都超空旷,收纳惊人
- 壁柜|90㎡两卧两卫,他爸在主卧中做了个9㎡衣帽间,全家乐开了花!
- 装修|两个男孩的160㎡新家,不走寻常路的装修,简单却又大气好看
- mini|日本单身宅男9㎡小家,厕所巴掌大却有浴缸,玄关晾衣服格外整洁
- 布置|125㎡现代黑白灰+木质感,简雅舒适无主灯,品质生活好自然
- 卫生间|再买房,卫生间一定按这7个标准装5㎡花了30天,越用越顺手
