
那么餐厅区的收纳其实也是很强大的,新砌墙体之后,沿着墙体装了一整面墙的到顶隐形柜,为了不让柜子过于单调呆板中间做镂空,安装灯带,瞬间觉得好有层次感。看上去很极简,其实收纳很强大。

现在的厨房缺点就是没有连接户外的窗户了,所以和多出来的房间墙体中间,做了一个磨砂玻璃,保证自然光还是可以照射到厨房里。吊柜还装了灯带,操作起来也不怕有采光死角了。

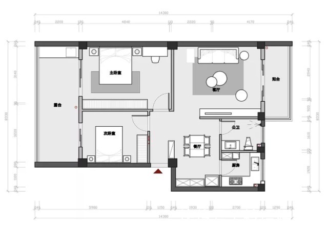
卫生间干区,内部就不展示了,细节可以在户型图看到。(文末会再上传一遍)


主卧通过改造后,多出了一个独立的衣帽间,就再床铺左侧,用半透明的黑灰色玻璃推拉门隔开。

右侧剩下的阳台打通,除了储物也兼备休闲。功能房

就是多出来的那个小房间,面积不大所以整体做了榻榻米箱床。

可以作为娱乐休闲的书房,还能作为杂物间用。重点是客人来了可以临时睡人,很方便。还有一个次卧因为没有提供图片所以就遗憾不展示了。次卧外面剩下的一半阳台就是洗衣晾晒的阳台了。(本案来自厦门屋主,设计木卫住宅studio)改造后连屋主自己都说,不知道为什么感觉房子变大了不少。说明这次改造确实还挺成功的,希望我的编辑和文字阐述可以让大家详细了解到改造的前后对比。最后再附上静态的原始户型图和改造设计图。


本案就分享到这里,最后总结。再怎么改造其实房子的原始面积是不变的,之所以看上去像房子变大了,是因为通过合理规划之后,空间配置更合理了,把需要用到的空间落到实处,有舍有得就是改造最成功的理念。希望这篇文章可以帮助到大家,喜欢的欢迎持续关注,我们一起学习装修知识,一起提升美学哦!
推荐阅读
- 空间|45㎡小户型学区房,爆改后“小中见大”,整个家被一眼望穿
- 轻奢|轻奢风格设计,120㎡装修效果明艳四方,越看越有格调!
- 储物区|90㎡两室一厅,看完她的家,我觉得一半设计师都要失业了!
- 阳台|同样是77㎡,我家小得可怜,他家三房每个空间都超空旷,收纳惊人
- 壁柜|90㎡两卧两卫,他爸在主卧中做了个9㎡衣帽间,全家乐开了花!
- 装修|两个男孩的160㎡新家,不走寻常路的装修,简单却又大气好看
- mini|日本单身宅男9㎡小家,厕所巴掌大却有浴缸,玄关晾衣服格外整洁
- 布置|125㎡现代黑白灰+木质感,简雅舒适无主灯,品质生活好自然
- 卫生间|再买房,卫生间一定按这7个标准装5㎡花了30天,越用越顺手
- 效果图|【鲁班装饰】北大资源颐和1898 122㎡现代轻奢风格,高贵与雅致
