
不仅如此这组卡座还可以充当临时的休闲书房,卡座侧面的柜子装成开放式,可以存入不少书籍,躺在卡座上面看书很惬意。

而开放式书柜右侧的电视墙柜,打开后里面居然存放了一台洗衣机一台烘干机,关上柜门的时候完全看不到,彻底隐蔽。一个小小的客厅兼备了储物室、洗衣房、餐厅、休闲书房的功能,高效极了!太实用啦

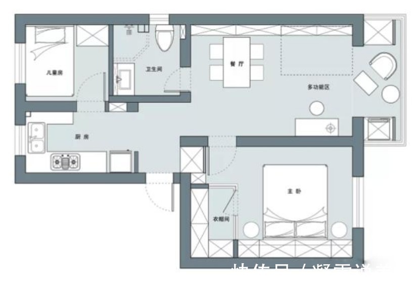
案例三▲这套案例和第一套一样,也是一个实用面积60㎡的小两房,从户型图不难看出客厅的面积还没主卧大。并且还要兼备餐厅功能。这套房子是学区房,平时白天客厅的休息功能几乎用不上,所就没有按照常规套路装修,一起看看实景。

为了扩大客厅空间,阳台也打通并归纳到客厅,让客厅扩容。没有按照常规的布局摆放沙发和设定电视墙。而是用墨菲床代替传统沙发。不用的时候可以收纳回墙面,预留出来的空地可以作为孩子的游戏区。让孩子玩耍时不至于拥挤。

墨菲床放下来就能睡人,家里来了客人也可以当临时的沙发坐人。

一家人日常的休闲都可以在餐桌椅上完成,餐桌不仅仅用来吃饭也可以作为孩子的陪读学习区、手工区、软垫餐椅坐感特别舒适。墙面剩余的空间打满隔断柜,可以存入不少书籍。那么餐桌椅的区域也可以兼备书房使用。被餐桌椅挡住的一排柜子,平时可以存入不常用的备用杂物,偶尔需要存取物品拉开餐桌即可,也不会觉得麻烦。

阳台扩进客厅后可以摆放一组带脚踏的单椅,躺靠休闲也是很惬意的。而左右两侧装上隐形柜,让收纳空间完美隐藏。

【 空间|客厅面积小空间难利用参考这3套经典案例,打造高效多功能客厅】
其中右侧的这组柜子当中还藏入了洗衣机和烘干机。写在最后:通过以上三套小型客厅的装修利用总结出以下几个知识点。1、储物类多用定制少用成品。2、柜子一定要做隐形柜门,减少视觉突兀性。3、重叠利用空间,尤其是垂直空间。4、小面积的客厅如果连接着一个客厅阳台,一定要尽量把阳台包进客厅,让空间扩容。希望可以给大家一些参考,感谢阅读!
推荐阅读
- 空间|45㎡小户型学区房,爆改后“小中见大”,整个家被一眼望穿
- 房子|一楼带院子的房子面积大,为何有钱人从来不买原来还有这个门道
- 面积|多大面积的房子受欢迎?在以下几种情况中才是我们的选择关键
- 大户型|参观135平米新房装修,完工效果比样板房漂亮,客厅大飘窗超实用
- 阳台|同样是77㎡,我家小得可怜,他家三房每个空间都超空旷,收纳惊人
- 购房者|王健林买三不买二,面积不要超过110平米,其中到底有何深意
- 黄铜|客厅别再乱装了,如今流行轻奢风,精致漂亮上档次,太羡慕!
- 客厅|老婆装修的房子,太漂亮了,单单一个客厅都被好友赞爆了
- 住房|未来10年,“这个面积”的房子“受人欢迎”?建筑学家给出答案
- 空间|180㎡浪漫小窝,蓝与粉、灰与白,优雅情趣,轻松舒适
