买下人生第一个真正的家,这是一套62㎡建筑面积的小宅,实际上只能做一室一厅。装修我们是第一次经历,预算不够,空间有限。请不起专业的设计师,我们找了熟人装修,出图纸,设计都是我和老公绞尽脑汁想出来的,前后拆旧重装花了接近四个月时间,当初设计的时候,老公坚持给厕所装“两个门”,还给唯一的卧室,挤出了一个次卧来,并且给次卧床设1.2m高,完工才知这个想法很睿智!忍不住晒晒。

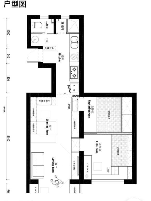
原始户型图弄不见了,只有设计平面图了。我家的户型我也说不上来,哈哈倒是有点像个大拇指,连亲戚都说我家的户型奇葩……哈哈废话不多说,一起看看现在的实景吧。

用于空间狭小,入户这里根本没有特定的空间装鞋柜,所以只好放了一个半高的靠墙鞋柜,厚度仅20cm,,虽然小了点,但可以很好的解决鞋子的收纳问题。

进门后便是我们的小客厅了,房子的层高并不高,但是有不少的房梁很难看,所以我们拉平了吊顶。而且我们也没有装什么主灯,都是点光源的筒灯,这样整个客厅的采光也没有死角。

首先我想说的就是我家的餐厅区域,这是当时木工的照片,因为房子小,一家三口人。收纳要充足,所以我们装了不少柜子,餐厅这里装了L型到顶的转角餐边柜,右边是整面墙的柜子,加隐形门的设计。【 柜子|老公非要给厕所装“两个门”,家人不理解,完工后发现他真睿智!】

右边是整面墙的柜子,柜子用白色漆涂刷,很简约,不会有大面积柜子带来的压抑感。只有挂电视机的位置,预留了凹槽,看上去特别简约实用。只有挂电视机的位置,预留了凹槽,看上去特别简约实用。我个人认为小户型柜子就应该这么装。

餐厅柜子的细节,里面都是充足的隔板收纳。

餐厅这里装了L型到顶的转角餐边柜,整体是白色加木色的设计,既实用又好看。

客厅的面积所剩无几,所以主沙发也没办法买太大的了。只能买一个小的双人沙发,搭配一组绿植也是充满了自然气息,后期再买两个豆袋,可以坐在地上。

厨房的面积紧凑,所以冰箱、灶台和水槽只能并排摆放了,算是一个半开放式的厨房,因为通向客厅的位置装了一个推拉门,可以有效的隔绝油烟。

因为通向客厅的位置装了一个推拉门,可以有效的隔绝油烟。

灶台左边还有一个空余的区域,用来放洗衣机,恰好也是厕所的门口,进水和下水也比较好布局。

推荐阅读
- |在征地拆迁中对于无证房屋应当按程序作出认定,符合条件的也应给予补偿安置,并非一律不予补偿
- 居住|未来买房,最值得注意的是什么?建筑学家:户型选择非常关键
- 征收|土地补偿应当是征收时市场价而非多年前购买时的价格?
- 新房|婆婆不顾反对请亲戚装修,完工后我懵了飘窗改做柜子,谁见过
- 鞋凳|85平米的两房,装修设计温馨又大气,定制的柜子真的太实用了
- 业主群|家婆在窗台装了一圈柜子,我上传到业主群里,个个都赞不绝口
- 柜子|35㎡迷你小宅,定制柜解决全屋收纳,还有隐形餐桌!
- |老公在农村花80万自建新房,朋友出300万要买,老公死活不卖
- 红木|非洲大红酸枝等于老挝大红酸枝,被豪言壮语震惊到了吧?
- 电视柜|老公硬在沙发墙上凿个“窗户”马桶上方打柜子,完工后我懵了
