房子是生活的必需品,也是很多人一生都要去为之努力的,现在的自己有套房子已经列入了结婚的前提,有了房子才要谈结婚的事,有人问为什么现在许多人在城市中有了房子还想要回到乡村再建一座,其实现在不仅建筑材料价格上涨,在自建房方面以后也会很严格,之前已经建好房子的人现在好了,回家养老休闲,不过现在农村有宅基地的还可以建房的,下面我们就来看看这三款农村9乘9米左右的二层建房图以及户型图,看看你有没有喜欢的?
第一款:现代简约二层自建房设计图以及户型图

效果图展示

效果图展示
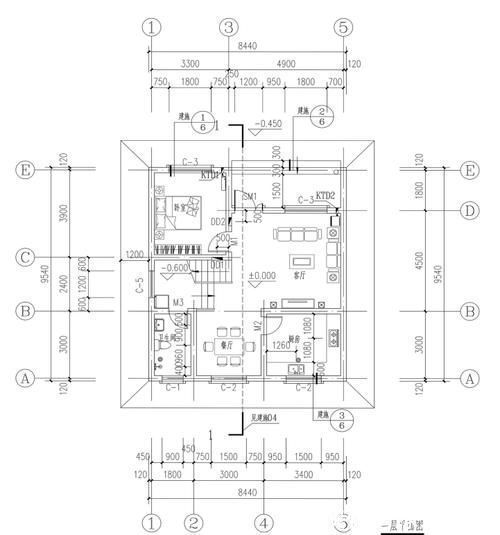
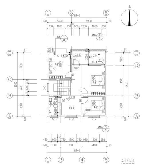
小户型经典新农村房屋住宅设计图,带外观效果图,红色的坡屋顶,精神、时尚,户型紧凑但功能齐全。
占地面积:8.44m*9.54m(不含院子),80平方米左右
建筑高度:8.24米(含屋顶);
一层房屋户型:客厅、厨房、餐厅、储藏间(楼梯间)、卧室、卫生间;
二层房屋户型:小客厅、卧室x3、卫生间、阳台

户型图展示

户型图展示
第二款:中式二层自建房设计图以及户型图,带庭院设计

效果图展示
带小院子的自建房别墅设计图,仿古风格,造型漂亮极了,小户型设计,一层建筑面积80多平,造价不高,整体外观精致美观,传统韵味十足,平面布局简单合理,景观绿植点缀其中,提升小院美感。灰色琉璃瓦坡屋顶,功能实用,造型优美,给人一种明朗素雅和层次分明的韵律美的享受。建筑采用木质门窗、护栏,更显小院古朴气质;一楼设有小,可供居住者休闲娱乐,亲近自然。
占地面积:9.9m*9m,82.94平方米;
建筑高度:8.43米(含屋顶);
功能:
一层户型:庭院、客厅、厨房、餐厅、卧室、卫生间;
二层户型:卧室(带卫生间)、书房、卧室、卫生间

户型图展示

户型图展示
第三款:简单二层自建房设计图以及户型图,造型漂亮

效果图展示

效果图展示

效果图展示
这款农村70-80平方米小户型自建房二层别墅设计图,造价经济,施工简单,这款别墅外观非常漂亮大气,户型设计的也非常实用,一层的走廊设计巧妙,户型简单,造价经济,室内共设有两厅六室,适合小户家庭建筑。不同形状的窗户设计,增添别墅外观的美感。功能划分明确,风水布局良好,适合农村自建。
占地面积:9.3m*9.44m,75平方米左右
建筑高度:9.57米(含屋顶);
设计功能:
一层户型:客厅、厨房、餐厅、卧室x2、卫生间、走廊;
推荐阅读
- 户型|13×13米农村欧式别墅,户型方正超级抢手,40万的造价就能盖
- 私密性|农村兄弟建房,是30万建双拼还是分开单独建看看这2套案例咋说
- 宅基地|确权结束了?农村有房的注意:今年起,农村房子统统“这样”处理
- 合院|农村盖房选中式准没错,11×12米中式大院户型,院子配露台太赞了
- 马头墙|别拿一层不当别墅!4套一层户型图纸,农村养老房的最佳选择
- 两层半|农村盖房子,是两层半好还是三层好?成本差别大吗?该看
- 宅基地|农村有房的注意了下半年这5种情况,房子可能会被拆除
- 三线城市|远嫁山区农村,晒晒婆家的婚房,院子大得吓人,厨房包你没见过!
- 自然资源部|停止“登记”?房产权无需争了,明年起,农村房屋全都“这样”处理
- 占地面积|回农村给父母建养老房,就在这10套图纸里选一套吧,颜值高又实用
