在很多城市都有年龄超过10年以上的老房子,但只有北京、上海等地的老破小房子受到年轻人的喜爱,尤其是售价低一些的小户型,学区房或者特别优质的小区除外。不过,也是现代年轻人生活品质的提升,不愿意过搬来搬去的生活,也不想面对各种刁难的房东,所以很容易萌生出想要买房的念头。比如齐家敏敏今天带来的这位90后姑娘,不想一直过租房的日子,买下了一套高层旧房,使用面积46㎡,装修成极简风格,一个人住。过着让别人羡慕的生活,这样的人生才算完美!

改造前入户入户即是厨房和玄关相连,与卫生间面对面。功能区界限十分模糊。并且一开门,整个空间暴露在视野下,一览无余,影响整体的美观度和舒适性。

改造前客厅改造前客厅,没做任何收纳,沙发、茶几、冰箱和桌子随意摆放十分拥挤,装修风格也不符合年轻人审美,深红色地板过于暗淡压抑,大多数设施也无法使用。

改造前卫生间改造前的卫生间,进门就面对马桶,动线受到阻碍,头顶上方悬挂一个热水器挤压空间。而且内部不同墙体阳角碰撞形成了很多藏污纳垢的地方,收拾起来很麻烦。

改造前卧室卧室更加简单,开门就是衣柜侧面,形成了视觉压迫,同时也无法扩大衣柜宽度,保障收纳的整洁。

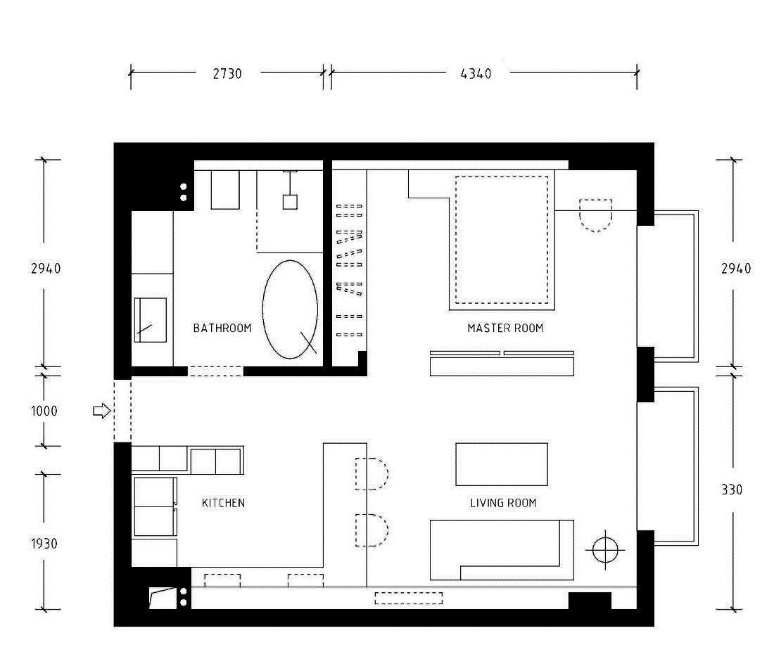
平面设计图装修布局图,根据屋主的需求对原户型做了整改,让居家的动线更加符合年轻人生活习惯,卫生间三分离设计,保证了生活舒适度,空间利用率最大化。

玄关装修完的入户门厅,首先拆掉原有的装修将功能区重新划分,通过一组S型的收纳柜设计,提升入户和厨房的收纳空间。解决了之前厨房正对卫生间门的局面,功能区的界限更加清晰可见。

客厅改造后的客厅,整体选择用大面积浅色系,提升整个空间的亮度。沙发后定制的背光时尚书架,满足了屋主的要求,也给客厅的收纳提供便利。
【 实用|看了她的46㎡小窝,头一回见卧室装两个门,美观又实用,很聪明】
客厅为了最大化提高空间的美观和实用功能,整个顶面采用无主灯设计,保证了舒适的层高。书架旁的黑色区域是一张壁挂床,不仅不占用任何地面面积,也解决了朋友需要留宿的问题。当朋友来玩时,放下来可以和沙发形成一个合围的空间。黑色背板也可以用来装饰和涂鸦,进一步利用。

厨房

吧台现在的厨房,橱柜选择白色调,和整个空间形成视觉统一,门口的鞋柜另一半做立柜收纳,提升厨房收纳能力。吧台不仅满足解决了用餐问题,也可以当作办公桌,丰富了空间的功能性,也起到分隔功能区的视觉效果。
推荐阅读
- 农村|占地109平造价38万,农村盖房选这套很实用,布局挑不出一丝毛病
- 装修|新家入住一个月,就开始后悔了,这7个地方,真是花钱又不实用
- 别墅|为什么有钱人都不买别墅了?看了原因,发现别墅也不“香”了!
- 建筑|农村别墅不是越高越好,分享10套一层户型图纸,父母看了一定喜欢
- 施工|现在谁还明装踢脚线!聪明人都把它“藏”起来,美观又实用!
- 实用|59㎡小两居,客餐厅合并功能叠加,中岛式厨房收纳满分,超实用!
- 房企|今明两年打算买房的家庭,建议先看一下这3点建议,非常实用
- 户型|农村盖房没有露台可怎么行,16×12米二层别墅,露台设计绝对实用
- 主卧|180㎡四居室精装房改美式风,看了主卧之后真的羡慕,非常的精致
- 小心机|走进邻居家的厨房,发现这些“小心机”太实用了,让生活更加方便
