卫生间色彩以清洁感的冷色调为主,搭配同类色和类似色,如浅灰色的瓷砖、白色的洗脸台,配上银色的镜子,在柔和、弥漫的灯光映衬下,不仅使空间视野开阔,暖意倍增,而且愈加清雅洁净,怡心爽神。
餐厅讲究所谓的“秀色可餐”,作为主人,无论是整体布局,还是软装搭配,都需要追求细节的完美。倾心打造的餐厅不仅凝聚了主人的心血,也会留给朋友一个深刻的印象。

为的就是独守这一份清净和安然这是一个关于母亲送给儿子的一份举足轻重的关爱

我们创造的美也许不那么神秘但是只要我们用心体验这一定是当下人们栖居生活的方向,愿一切都那么纯粹。
提到厨房,很多人首先想到的就是烟火气息,的确,很多人都会有油烟的困扰,所以厨房尽量不要做成开放式的,这样会影响到其他的居室环境。另外厨房的收纳功能虽然要考虑,但是一旦厨房面积过小就要放弃做太多的橱柜了,否则会很拥挤哦。

厨房是母亲留下最深的回忆也是母亲最深刻的背影,整个厨房的装修在颜色上以白色为主,没有华丽的装饰点缀,整体的橱柜设计,流畅的线条,大理石的台面整体显得非常的简单素雅。
其实现代户型中书房的位置往往可有可无,有的书房和卧室相连,承担了半个娱乐间的功能。男主人在书房玩着游戏,女主人在卧室看电视,有时候也是一种协调,所以书房不一定非要一板一眼,风格适当和卧室统一也是ok的设计。

现代风格的空间组织不再是以房间组合为主,空间的划分也不再局限于硬质墙体,而是更注重会客、餐饮、学习、睡眠等功能空间的逻辑关系。

装饰材料与色彩设计,为现代风格的室内效果提供了空间背景。

通过家具、吊顶、地面材料、陈列品甚至光线的变化来表达不同功能空间的划分,而且这种划分又随着不同的时间段表现出灵活性、兼容性和流动性。
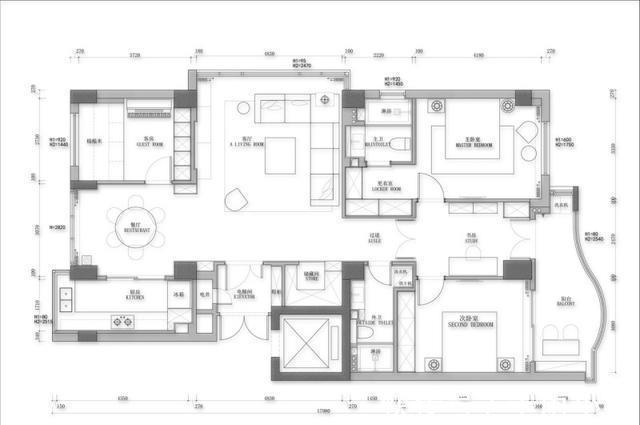
以下就是本套强佑府学上院小区180平米三居室房子的户型图。

平面布置图案例风格:现代风格案例面积:180平米案例户型:三室两厅
以上就是强佑府学上院小区180平米三居室的装修设计案例,小伙伴感觉怎么样?简约的风格、时尚的搭配组成了现代的风格,效果却是很好的。只花费了18万元,也是我们可以接受的装修预算。小编给大家一个装修小窍门,装修的时候效果是一方面,实用也是很重要的一方面,所以在装修的时候要考虑今后入住的实用性哦!
推荐阅读
- 别墅|别人城里花几百万买房,我只花30万就盖了漂亮的别墅,让人羡慕!
- |老公在农村花80万自建新房,朋友出300万要买,老公死活不卖
- 姚明|走进姚明在美国的豪宅,全家都是雕花实木家具,骨子里是很传统的
- 签订|签订购房合同时,不能忽视2个地方,不然很可能多花很多钱
- 新房|亲力亲为,老公花8万搞定90㎡新房,阳台真的特别美
- 隐蔽门|厨房别再安装推拉门了,现在流行这种设计,干净实用还漂亮!
- 购房置业|“花七百万定居买房”!大舅哥与兔兔家长通话!双方已有结婚打算:我月入百万
- 厨房|81㎡极简风的家,全屋白墙+平吊无主灯设计,干净纯粹透着高级感
- 杭州|郭家花园与郭松林其人
- 衣柜|花8千块木工做上下床,还是第一次见这种床,连衣柜书桌都有了
