农村虽然不及城市喧哗热闹,但是却也有一番风味,空气清新、风景优美这些都是在城市里感受不到的,现在的农村发展的越来越好,但是要想在农村盖一栋经济又美观的小别墅,适合的户型图纸和专业的施工团队一个都不能少。今天小编就带大家一起看看145平方房子设计图片,有全套户型图哦,一起来看看吧。第一款:最漂亮的一层平房图片本户型为漂亮、美观的一层平房设计图,含外观图片,内部布局非常合理,南北通透,采光优良,4室两厅两卫。
【 卫生间|145平方房子设计图片,简洁大方,一家人住其乐融融】
别墅效果图展示占地面积:14.0m*10.5m,建筑面积145平左右;建筑层高:一层;建筑高度:6.50米(含屋顶);设计功能:一层户型设计:客厅、餐厅、厨房、主卧(带卫生间)、卧室x2、书房、卫生间;

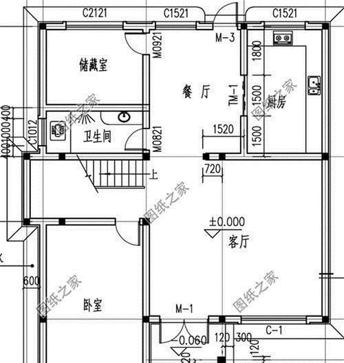
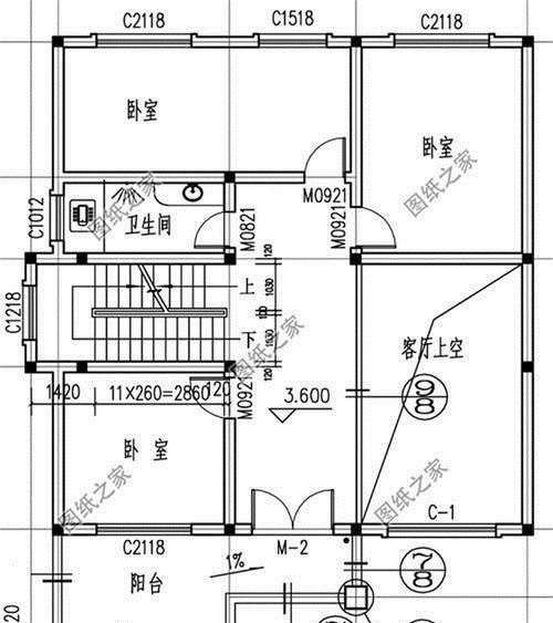
别墅户型图展示第二款:二层农村小别墅设计图二层农村小别墅设计图,所用的占地面积都不大,符合农村建房政策,外部造型及色彩搭配之协调更让人叹绝。

别墅效果图展示占地面积:13.6m*12.3m,140平方米左右;建筑层高:二层;建筑高度:9.9米(含屋顶);设计功能:一层户型:玄关、客厅、餐厅、厨房、卫生间、卧室x2、卫生间,户外平台;二层户型:客厅、卧室x4、露台、卫生间;

别墅一层户型图展示

别墅二层户型图展示第三款:客厅中空三层复式别墅房屋设计图本方案为客厅中空三层复式别墅房屋设计图,落地大玻璃,屋顶带大露台,还有个小凉亭,含外观效果图,外观时尚、新颖。

别墅效果图展示占地面积:11.00m*13.2m,145平方米左右;建筑层高:三层;建筑高度:12.06米(含屋顶);设计功能:一 层:客厅、厨房、餐厅、卧室、卫生间、储藏间;二 层:休闲厅、卧室x3、卫生间、阳台;三 层:卧室x2、卫生间、凉亭、露台;

别墅一层户型图展示

别墅二层户型图展示

别墅三层户型图展示以上就是农村145平方房子设计图片,这几套别墅的设计图,你最喜欢哪一套?
推荐阅读
- 房子|2年前管清友直言不买房以后更买不起,2020年,买房的人赚了吗
- 房子|把房产证加了女友的名字,结果婚没结成,房子还能要回来吗
- |女子在14年前买的房子拆迁了,共分到419万,被原房主拿走37万
- 卫生间|向往田园生活的夫妻俩,把家装得清爽大方,还有让人快乐的大阳台
- 年轻人|这4种房子,就算预算再低也不要买,买了也是会后悔
- 卫生间|新房到手4天难以入眠!这19个地方全部装错,血汗钱白砸还净添堵
- 北上广|在北上广拥有多套房的人,为什么不卖掉一套房子实现财务自由?
- 租客|为什么有的人宁愿空着房子也不出租?过来人说出实话,差点吃亏
- 卫生间|83㎡毛坯房整体装修,空间不杂乱了,还特别温馨,人见人爱!
- 挂牌|我家房子很好138平价格不高,为什么卖不出去呀?着急呀
