这是一套位于杭州的140㎡大户型,面对高昂的房价,能够买得起这么一套大房子,家底一般都是挺殷实的。这套新房采用简约原木风装修,并非舍不得花钱。而是好的装修效果,要符合房主的审美和生活习惯。只有让人感觉舒适,那才能有家的温馨感。
房屋资料▼
房屋坐标:杭州
建筑面积:140㎡
装修风格:现代简约风格
装修费用:硬装25万左右
图片来源:小记
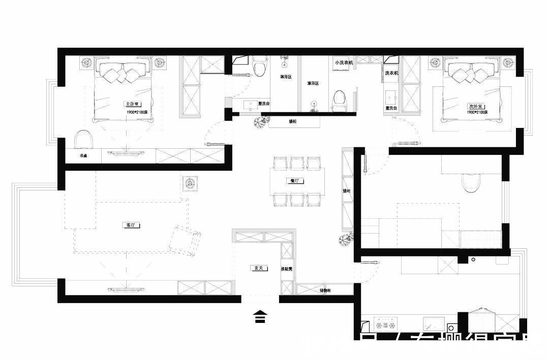
平面户型图▼
这套房子是三室两厅一厨两卫格局,因为空间足够大,每个功能区都能设计得游刃有余。户型方方正正,南北通透,客厅和厨房都带有阳台。

入户玄关▼
入户有一个独立的玄关,为了和客餐厅有一个明确的划分,地板采用灰色的仿古瓷砖。一进门就被强大的收纳效果给圈粉了,白色柜门的玄关柜、鞋柜。不仅收纳功能强大,颜值效果也是非常在线。

白色的柜门,和墙面的颜色浑然一体。白色的柜门和墙面,与地板的灰色调相互搭配,给人一种时尚清新的视觉感受。右手边的玄关柜底部,还有一排的双层鞋架。方便进出门的时候替换鞋子,不用每次都去翻鞋柜。中间是换鞋凳,换鞋子也更方便。

客厅▼
玄关进来就是开放式的客餐厅,客厅的阳台直接打通,让整个客厅看起来非常的敞亮大气。灰色的沙发、灰色的大理石电视墙,定制的原木风电视背景墙。灰色调和原木色调互相融合,呈现出清新雅致的效果。

整个客厅看起来简约又个性十足,天花板没有设计吊顶。电视墙的顶部是筒灯,沙发的上方是一排的轨道射灯。电视墙的电视柜连接着一套定制的原木柜子,收纳功能非常给力。

给原木收纳柜来个正面的特写,两边都是原木门的收纳柜,中间是开放式的展示架。展示柜方便摆放一些装饰品、书本、古董、小盆栽等等。

客厅的沙发背景墙没有做多余的造型,简单的乳胶漆而已。后期布置软装的时候,挂了一幅抽象的个性挂画上去做点缀。

把客厅的阳台打通是一个明智的决定,安装上落地窗之后。客厅的视觉效果立马提高了接近一倍,主要是采光条件足够强大,视觉效果非常通透大气。除了自然光之外,天花板的萤火虫吊顶,轨道射灯,墙壁的臂杆灯,都可以提供充足的氛围和光照条件。

餐厅▼
【 原木|140㎡简约原木风,没有奢华的元素,却每个细节都让人感到惊艳】餐厅的装修设计,采用了更多的原木材料。天花板、墙面、餐桌椅,都是原木材料打造。不远处的白色餐边柜、墙面,和原木色材料互相搭配。视觉效果很有时尚和温馨感,让人看着由衷的感觉舒坦。

推荐阅读
- 现代|206㎡现代轻奢,华丽的高级质感,优雅的舒适空间
- 高级感|89㎡老房改造简约风格三居室,这样颜值爆棚的家,你爱了吗!
- 卫生间|83㎡毛坯房整体装修,空间不杂乱了,还特别温馨,人见人爱!
- 户型|设计师爆改66㎡老破小,挤出3房2厅,颜值堪称“小豪宅”
- 小户型|58㎡不一样的轻奢风,每处都很高级
- 电视背景墙|80㎡现代北欧风,简约时尚诠释高级质感!
- 面积|38㎡小户型,一半面积是庭院,到了晚上才知道这样设计有多高级!
- 新房|亲力亲为,老公花8万搞定90㎡新房,阳台真的特别美
- 美特斯·邦威|明天开始:9盘登记,1.19万/㎡起,3千余套房可选
- 轻奢风|外国小伙的93㎡单身公寓,全屋轻奢风,卧室纱帘让网友吵翻了天
