户型解析项目地址 / Address:郡上蓝湾风格 | Style:现代极简 项目面积 | Area:89㎡

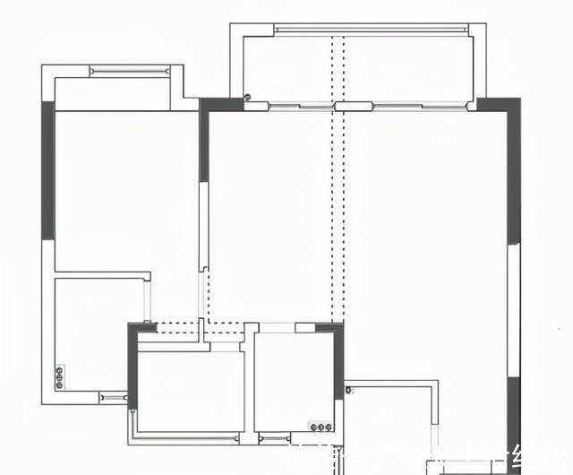
原始结构图 设计理念:一抹清水般的灰,或许能为你带来除却体温外的心灵降温。“简约”是一种生活的态度,也是一种居住理念。设计师以简约作为这套公寓的设计理念,在空间设计与家具选择、色彩搭配等方面,都力求将居住舒适感最大化。

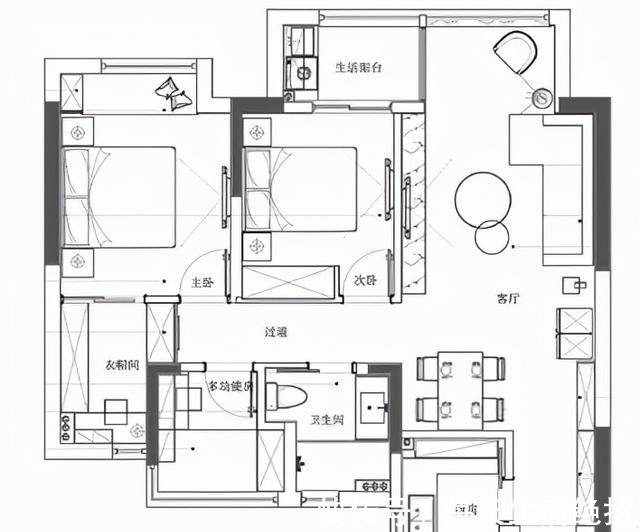
平面设计图 玄关玄关柜挖出局部空间做换鞋凳,底部留出空隙,便于放鞋。

客厅客厅拆除原双阳台的墙体,打通公共空间,从进门开始便给人宽敞明亮之感。

阳光透过白纱,洒满空间,一张皮质沙发、几株绿植、一捧书,微风吹过,打造出慵懒放松的阅读空间,总是让人禁不住想偷个懒、打个盹儿。

白色天花板过渡衔接,让空间不显局促与压抑。线条感十足的主灯,成为空间增添时尚魅力的重要角色,极具视觉张力。【 高级感|89㎡老房改造简约风格三居室,这样颜值爆棚的家,你爱了吗!】

从客厅望向餐厅,映入眼帘的三盏金属吊灯都运用了大量的简洁线条,无论是横平竖直还是交错型,都充满了现代时尚之感。

天然的原木材质做电视背景墙,木作的温润质感透出淡淡的暖意,搭配暖色灯带,营造淡淡温馨感,整个墙面特别有腔调。

灰色的艺术漆墙+黑色的皮质沙发+极简的茶几,营造清新自然、舒适自在的会客环境,在这样的环境氛围中一日三餐,感受晨光微露,正午暖阳,黄昏暮霭。


餐厅极简的金属吊灯、一幅充满现代感的挂画是点睛之笔、几株生机的绿植,没有多余装饰的用餐环境,不仅能用心品味美食,更是对烹饪者的尊重。

餐边柜开放格结合灯带的设计,颜值高、收纳强、和谐且统一。


厨房厨房以玻璃砖打通光的路径,近看或远观,皆充满艺术气息。竖长百叶窗使得厨房空间不会局促,视觉通透性更强,且会增加过道的采光。

黑色橱柜搭配灰色地砖,让做饭空间也变得时尚起来。

靠近洗菜、烹饪区放上地垫,防止水渍把地面变得脏乱起来。
推荐阅读
- 现代|206㎡现代轻奢,华丽的高级质感,优雅的舒适空间
- 卫生间|83㎡毛坯房整体装修,空间不杂乱了,还特别温馨,人见人爱!
- 现代感|两层现代别墅,自带阳光房和大露台,更让人心动的是最美庭院
- 户型|设计师爆改66㎡老破小,挤出3房2厅,颜值堪称“小豪宅”
- 小户型|58㎡不一样的轻奢风,每处都很高级
- 电视背景墙|80㎡现代北欧风,简约时尚诠释高级质感!
- 面积|38㎡小户型,一半面积是庭院,到了晚上才知道这样设计有多高级!
- 新房|亲力亲为,老公花8万搞定90㎡新房,阳台真的特别美
- 美特斯·邦威|明天开始:9盘登记,1.19万/㎡起,3千余套房可选
- 轻奢风|外国小伙的93㎡单身公寓,全屋轻奢风,卧室纱帘让网友吵翻了天
