房屋基本信息

住房面积:66平方米
住宅户型:三室两厅两卫
居住人口:两个大人一个小孩
家居风格:现代简约
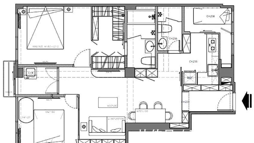
户型图

业主要求:
因为是老破小翻新,业主希望能改善采光照明问题。
尽可能让小空间发挥很大的作用。
01门厅

门厅旁边紧邻着的是厨房。这里做一排橱柜可以分隔厨房空间,门厅位置的收纳问题也解决了~
因为户型小,门厅在客厅旁边,所以设计师没有设置换鞋椅,业主可以去客厅换鞋,也是很方便的。

02客厅

原来客厅最大的问题是采光不好。这也是本次改造迫在眉睫的问题之一。为了增加采光,设计师原来用黑色框架玻璃隔板来代替墙壁,让空间中能够透过更多的光线。
晚上睡觉拉窗帘可以保护隐私。

电视墙不必太复杂,简约的造型就能让空间变得透明清爽,橱柜收纳也不成问题。

沙发后面专门加了一个办公区,开放式格子是用来收纳书的,办公桌完全能满足两个人同时办公。

03厨房

本来想做开放式厨房,但预见烹饪时出现的油烟问题,设计师和业主便放弃了这个想法。而且再次回看,用抽屉柜把门厅和厨房分开是一个很棒的设计创意~

厨房墙砖是用小花砖粘贴的,有乡村风格的感觉~
04卫生间
【 户型|设计师爆改66㎡老破小,挤出3房2厅,颜值堪称“小豪宅”】

为了增加收纳,在马桶后面延长了洗手台面,加上超大的镜柜,收纳量相当大,能够满足一家子的小物收纳需求~
这里需要注意的是,壁挂镜柜或马桶只能放在承重墙上。
文章由齐家妙妙编辑,部分图片源于网络,侵权删!
推荐阅读
- 小户型|58㎡不一样的轻奢风,每处都很高级
- 面积|38㎡小户型,一半面积是庭院,到了晚上才知道这样设计有多高级!
- 小户型|如何提高小户型的颜值?小技巧别错过
- 家具|日式风,有禅意的文艺范住宅,也很适合小户型!
- 豪宅感|真的只有30平!小户型这样逆天设计,蜗居也有豪宅感!
- 家居用品|一家5口蜗居夹缝房,国内设计师无能?日本设计师魔改成别墅
- 户型|一套你不想要,但不得不接受的装修效果,被无数中国家庭在使用
- 无处安放|开门就是大厅的户型,鞋柜如何摆放?客厅的私密性如何保障?
- 户型|独栋三层农村别墅图片,实用多一点,适合农村的自建房
- 户型|房子要是有这些特征,就是“黄金户型”了,你家占了几条?
