杭州这对夫妻很有远见,在装修自家这套80㎡的住宅时,他们选择了去客厅化装修,入住之后,家属之间的互动频率相比以前越来越高,一家人的感情达到了快速升温的效果。“去客厅化”算是装修圈的一个热词了,倒不是说真正地舍弃了客厅这个空间,而是弱化了“会客功能”。【 起居室|这对夫妻很有远见,选择去客厅化装修,让一家人的感情快速升温】

“客厅”改成了“起居室”不再为了攀比、撑门面,而去打造一个华而不实的“会客空间”而是真正把房屋的主要空间,打造成供给一家人互动、休闲且多功能化的“起居室”。虽然这样的设计目前还不是主流,但也不难发现,这样设计的家越来越多了。可能有些朋友会觉得这样的设计标新立异,但也许住过才知道有多爽。看看这个80㎡“去客厅化”之家,相信你会有所收获!

设计说明屋主一家三口原本和老人居住在一起,但随着小宝长大,房子越发拥挤不够住。于是在同小区买下了一套小户型,不仅可作为学区房,晚辈们也有自己独立的居住空间,同时方便和老人之间互相探望。

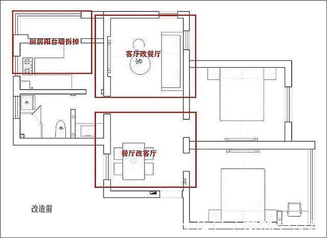
▲原户型方案图80㎡建筑面积的老房子,套内只有68㎡,标准的两室两厅格局。因为总面积小,所以每个空间都显得很拥挤。

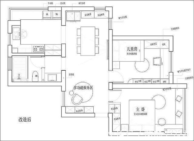
▲改造后方案图@恒彩设计师,结合屋主生活诉求,巧妙规划空间属性,结合原户型做了如下改造:原来的客餐厅改成超大“起居室”。厨房和北阳台打通。改动厨房门的位置。主卧门洞右侧嵌入柜子。以上为改造简介,至于为何如此设计?有何巧妙之处?帮助屋主解决了哪些问题?且跟随我的脚步,在文内找到答案吧~屋内实景

▲门厅改造前后对比在原格局当中,门厅其实就是入户餐厅,一旁还紧邻主卧、次卧门洞,整个门厅区十分拥挤。

▲门厅改造后,分别在入户大门两侧定制了顶天立地柜,首先解决了入户区域的鞋子、杂物收纳问题。

左侧,置换墙体,打造嵌入式鞋柜。右侧留出换鞋凳空间,兼顾衣帽、包袋挂放功能。整体设计非常人性化、统一化,一眼望去干净清爽,设计非常巧妙。

▲休闲区摒弃了传统的“会客功能”,餐厅区改到原来的客厅位置,而原来的餐厅区如上图,取而代之的是一个“休闲区功能”。

▲休闲区改造前后对比两个不同风格元素的单椅混搭,配合小茶几组成一个闲坐区域,方便躺靠休息、阅读书籍,空闲时间还能坐在这里打手机游戏。

推荐阅读
- 呈贡|小夫妻买学区房跟房东砍价69万,房东:这不是忽悠人
- 夫妻俩|婚后不跟父母住,在隔壁再建一栋,小夫妻天天住新房三餐去老房吃!
- 夫妻二人|房产证也有套路,房产证上尽量别写夫妻二人名字,看完终于明白了
- 夫妻|房子70年满期后归谁?国家一锤定音,专家:尽量别写夫妻名字
- 民法典|夫妻一方代签的房屋买卖合同,有效吗?
- 购房置业|夫妻房一旦发现这些现象,千千万万要避开,小心家败人亡!
- 厨房|小夫妻入手的二手老房,经过改造后实现转变,让人拍手称赞
- 滨江|卧室一旦出现这几种现象,暗喻夫妻感情破裂,幸亏老师傅提醒我了
- 墙面|这对夫妻很有远见,买下120平复式小楼,客厅开阔还有双储物间
- |82年夫妻创业多年,最后还是输了!负债150万,房子也被抵押
