这样的改造方式也太高级了吧,完美地利用了空间,质感与高级并存
在现代生活中房子装修是每个人心中的大事之一。一个好的装修设计能够带来一个好的心情,更能够帮助我们幸福。本期我们介绍的是一个台湾温馨小家,140平方米的面积十分的宽敞,明亮。整体房子设计采用了木材元素,简约高级,古色古香,更增添了家的美感。现在就让我们一起走进这个布置温馨简单的小家,欣赏一下它的魅力之处吧。
房屋户型:
三室
房屋面积:
140平方米
装修预算
:30到50万元
所在城市:
台湾
主要建材:
木皮、大理石、壁纸、木地板、系统柜、灰玻、喷砂玻
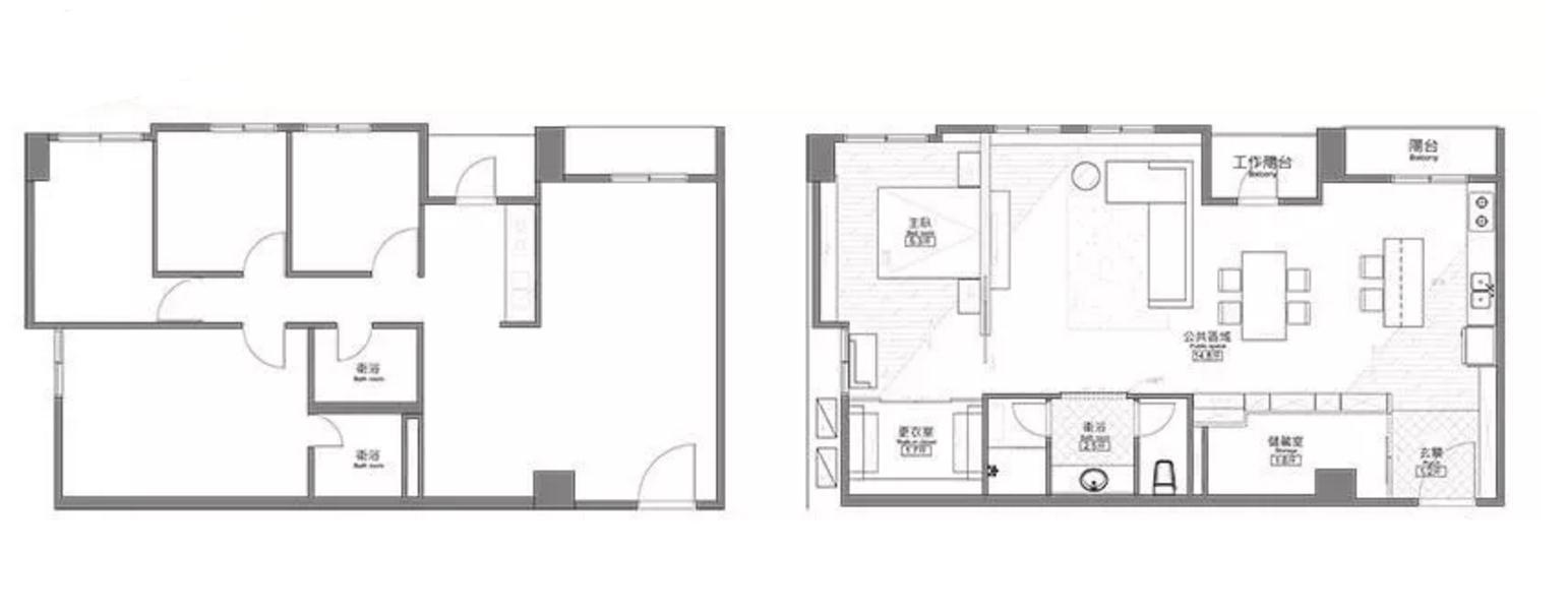
【户型图】

设计重点:
四卧改造
在原本的户型图中,房子构型方正。整体看上去十分有严肃协调感,空间分布也较为合理。但是对于两个人的生活来说,四个卧室的空间又显得十分多余。为了更好的利用空间面积,设计师合理地打通了一部分承重墙,把空间变得更加连贯。改装后的宽敞互融式空间也更加提高了立体感。
【客厅】


设计重点:
原木色彩
客厅装修中并没有过多亮系的颜色,白色和原木色为主设计基调,多了几分自然的清新感。

家具搭配也十分有特色,并没有常见的茶几和电视柜,而是采用了一个外形奇特的木箱和懒人沙发,看上去很是宽敞高级。暖暖的木材原色给人带来了更好的通透与视觉效果,非常高级。
【餐厨区】

设计重点:
吧台桌
餐厨区的设备十分简单,浅白色的台式餐桌,集用餐和储物功能于一体,干净整洁,十分实用。上一层是平时的吧台用餐区。下面一层有很多的小型空间,放置一些闲杂物品再合适不过了。
【书房】


设计重点
:简约风
书房位于客厅沙发的另一侧,很是凸显家庭的和谐。简单的木材书桌,两把黄色和白色的椅子,十分的方便办公。

不需要过多华丽的视频点缀,就形成了一个温馨的空间。平时女主人把书经常放在旁边的过道上,非常方便。原木色的地板条纹浅浅,与桌面的色彩相互衬托,更加具有质感。
【卧室】

。

设计重点
:无床头装置
卧室家具搭配十分的简单。干净整洁的大床并没有床头的装置,看上去十分的新颖别致,但是并不影响睡眠质量。

推荐阅读
- 客厅|刚完工的新房,邻居纷纷上门参观,主卧设计真“机智”,晒晒
- 购房置业|上海市徐汇区一套1999的房产出售,吸引14位购房者加价104万元
- 房贷|有房贷在身的人,要慎做这5件事,否则吃亏的还是自己
- 贷款|别再傻傻的还房贷!做好“这四点”能省下一辆车,银行不会跟你说
- 房贷利率|谣言害死人!关于贷款银行利息的5大谣言,谁信谁吃亏
- 按揭|发现一位36岁韩国太太的家,因布置而走红:工作很累,家必须舒适
- |当初买商铺出租的是不是亏惨了
- 交易|父母离世,房产证上是父母的名字,需要马上过户吗?如何过户?
- 负增长|210万买的91平方房子,每年租金17.9,合算吗?
- |入户门垫放门内还是内外好?有钱人都兴这样做,后悔没听师傅劝
