今天给大家分享的是一套108㎡简约风三室装修案例,客餐厨一体化设计,三个卧室,一间主卧、一间书房、一家儿童房,再加上大量储物空间,刚好满足三口之家的生活需求。

房屋信息
户型:三室
面积:108㎡




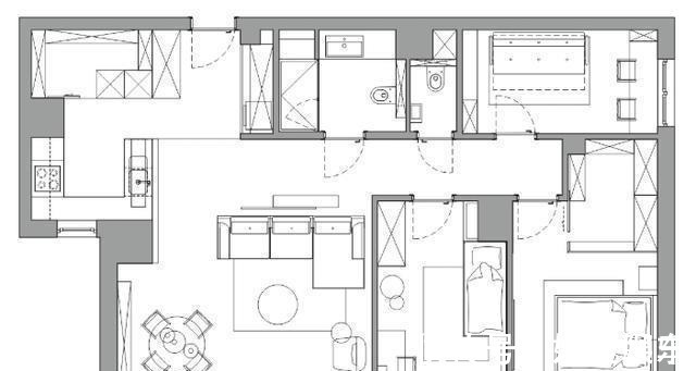
客厅原本是开放式,为了视觉上有一定遮挡,设计师在走廊与客厅之间,用木栅格屏风作为隔断,简单又大气。

客厅采用无主灯设计,利用吊灯+镭射灯组合照明足够用了,绿色布艺沙发搭配铁艺圆形茶几简洁利落不单调。



餐厅在靠近阳台位置采光极佳,靠墙还设计了铁艺收纳格来增加收纳功能,既不占用空间又能满足收纳功能。


厨房采用开放式设计,内部则采用U型橱柜设计,长长的操作台面满足备餐所需,方便日常使用。



卧室没有做过多装饰,利用材料本身的颜色、纹理和细节等突出品质感。

背景墙用渐变绿色来装饰,搭配双人床、黑色金属灯具更有整体感。




书房开放书架参差错落,既能收纳又能摆放装饰品,布艺沙发选择可折叠款式,展开又能作为临时客卧,办公累的时候也可以在上面休息。



儿童房利用墙角位置做了床头柜和开放书架,搭配一个舒适小窗,留出充足的活动空间。
推荐阅读
- 原木色|夫妻俩买下57㎡二手房,重新装修后成温馨美居室,引众多人羡慕
- 阳台|150㎡中式风用红木色,大气美观又有品味,入户便让人心生喜爱
- 上市房企|中年爸妈和8岁男孩的两室住宅,木质藤编弧形添亮点,收住熊孩子
- 住房|傈僳族基本住房形式之一——木楞房
- |这栋木质结构的农村自建房,真的太漂亮了!你见过吗?
- 餐厅|106平现代风三居室,横木吊顶的走廊将休闲的乡村风味带到室内
- 香港|走进古天乐在香港的家,窗户全用木板遮住,外人几乎看不见里面
- 原木色|140平米原木风格装修,大户型里的简单生活,岁月静好
- 装修|进门鞋柜万万要这样做,一旦木工给你这样装,不用验收直接给工钱
- 木地板|为什么越来越多人直接入住毛坯房省钱时尚又环保,后悔装修早了
