每日奔波在喧嚣的城市中,朋友你是否曾想过有一天我们终将老去,是否能去放慢节奏邂逅午后的夕阳。其实在老家建房居住,没什么不好,老家是我们的根,回家建一栋属于自己的别墅吧!下面小编介绍5款农村四开间一层自建房设计图以及户型图,一起来看看吧!
第一款:新风格一层别墅设计图以及户型图,简约而不简单

效果图展示
农村自建平房户型方案图,占地180平方米,外观非常有设计感。米黄色外墙、灰色仿石漆点缀以及灰蓝色琉璃瓦屋顶,外观简约而不简单。方形搭配着拱形灰色门厅,时尚漂亮,外走廊的设计增加活动空间的利用率,提供给孩子们玩耍的好场地,洗衣房在农村非常少见,大大提高了居住品质。整个布局紧凑又不拥挤,没有浪费任何不面积。
占地面积:16.7m*12.7m,183.7平方米左右;
建筑层高:一层;
建筑高度:6.34米(含屋顶);
户型:玄关、客厅、卧室(带卫生间)、卧室x3、厨房、餐厅、卫生间、洗衣房

户型图展示
第二款:农村一层别墅设计图以及户型图,简简单单

效果图展示

效果图展示

效果图展示
这款别墅3室2厅带书房,别拿一层不当别墅,一层的房子建造起来省钱又美观,简单又好看,还别有一番风味,丝毫不比别墅差!
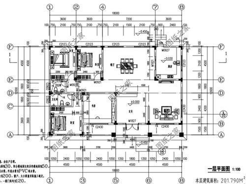
占地面积:18.0m*12.0m,200平方米左右
建筑层高:一层
建筑高度:6.14米(含屋顶)
设计功能:玄关、客厅、餐厅、厨房、、主卧(带卫生间,书房)、卧室×2、卫生间

户型图展示
第三款:实用型一层自建房设计图以及户型图,经济漂亮

效果图展示

效果图展示

效果图展示
本户型为美观的一层平房设计图,含外观图片,内部布局非常合理,南北通透,采光优良,4室两厅两卫。
占地面积:14.0m*10.5m,建筑面积145平左右;
建筑层高:一层;
建筑高度:6.50米(含屋顶);
一层户型设计:客厅、餐厅、厨房、主卧(带卫生间)、卧室x2、书房、卫生间;

户型图展示
第四款:现代中式一层自建房设计图以及户型图,外观气派

效果图展示

推荐阅读
- 住房|5年后,这四类房子将越来越“值钱”,下定决心买房的可尽早入手
- 四居|苏州园区玲珑房价迈入“6万+”,最贵的小区均价超过10万/平
- 房价|中国房地产未来在一二线,还是在三四线,确实是个值得思考的问题
- 四星级酒店|副中心将新添一家四星级酒店!总建筑面积2万平米!就在这个地
- GDP|“第四代住房”垂直森林住宅不为常人所知的22个尴尬真相
- 避坑指南 | 家居装修,这四个功能区要注意避坑|小小屋装修网| 指南
- 小户型|车库+露台+舒适大套房,16×10米四层现代精致别墅
- 四川|四川蒙娜丽莎董事长何晓勇:「勇」勇往直前,勇于创新,勇争第一
- 饰面板|四口之家住89㎡,两年过去,家中依然美观大方,阳台更是实用漂亮
- |建筑工程预算怎么审核?四大审核方法介绍!
