屋主Vivian是一个重度囤货党,改造前的房间目之所及全是物品,储物空间严重不足。
日常家中常住人口两人,另外还有两只狗狗和一只龙猫,是家中的吉祥物,设计时除了考虑人的居住习惯,还要方便龙猫的居住和狗狗的日常活动。

房屋信息
面积:107㎡

▲一层原始户型图

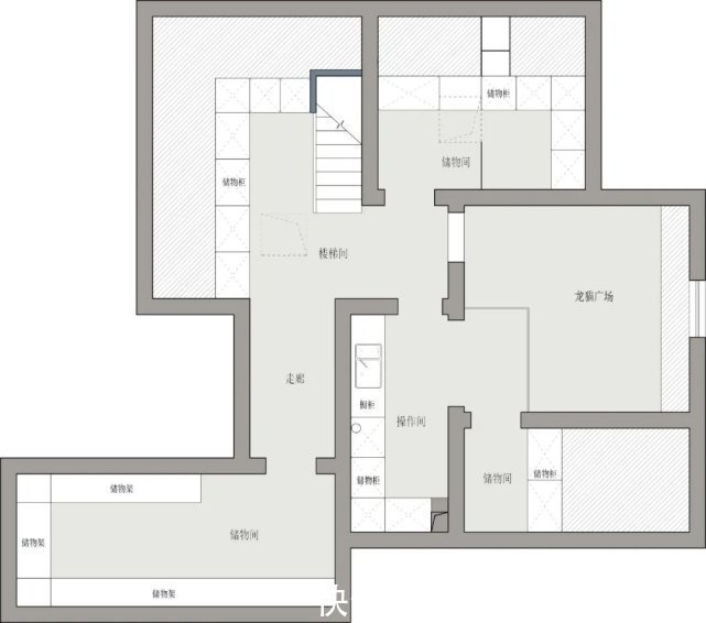
▲二层原始户型图
原户型为两层,第二层是阁楼,有足够的地方做储物空间。
存在缺陷:1.原户型客厅较小,一侧墙面有一扇通往露台的门,放普通的餐桌会影响行走动线。2.通向二楼的楼梯在一个卧室内,上下楼很不方便。

▲一层平面布局图
设计策略:1.门厅处借卫生间干区的一小部分做通顶玄关柜。2.厨房半开放式与客厅吧台联通,靠近新楼梯的位置延伸出吧台,做另一处餐桌。3.主卧反传统的没有选择靠墙,而是在床头留出通往主卫和衣帽间的行走空间,形成环形动线,让主卧、主卫和衣帽间连通成整体私密空间。4.主次卧各开一扇门通往半圆的休闲区,是屋主母女亲睦的共用空间。

▲二层平面布局图
设计策略:1.二楼承担了绝大部分的收纳压力,一整层都变成了储藏室,并开辟出龙猫们专用的小广场。
2.二层阁楼除去图上斜线处实在利用不上的地方,其他空间都做了尺寸定制的储物柜和储物架。
3.为了方便给小龙猫准备食物换水,阁楼额外安装了洗手盆。
>>>>改造前



左右滑动查看更多这个家在改造之前,只能用“杂物间”来形容,而且东西都摆放在外面,让人无从下手。
玄关

玄关是定制柜+穿衣镜的组合,下方悬空方便放穿鞋凳、扫地机器人和拖鞋等,感应式灯带,入户即亮。无把手设计看起来更简洁。

因为家有狗狗,一到换季就容易狗毛遍地飘。为了方便打理,整屋摒弃地板,通铺磨砂质地的地砖,不容易显脏且易清扫。
客厅

客厅面积不大,因为更换了楼梯位置无法做传统的背景墙。天花板吊顶安装电动幕布,投影仪一样可以拥有家庭影院。
天花板造型和墙面石膏线营造了洁净轻盈的法式情调,丝绒质感的墨绿色沙发+奶油色墙面不乏精致感。

单人沙发的亮黄色跳脱出来,成为空间的点睛色。

MARSHALL音箱摩登又复古,简直是提升气质的利器。一件精致的软装搭配可以让整个空间都LEVEL UP起来。
推荐阅读
- 隔墙|56㎡四室公寓,空间全打通长虹玻璃做隔墙,改成开放一居室更安逸
- 铝窗|300元/㎡的断桥铝窗和700元/㎡的有何不同?差在哪里?选哪个?
- 宁波|怎么做到的?60㎡逆天改造3室2卫,7人住一点都不挤!
- 收纳|我怎么没想到!厨房窗台上加个横杆,锅碗瓢盆挂上去,收纳满分!
- 洞石|她家仅69㎡,餐厅厨房对换,隔出一个书房,全屋漂亮极了
- 现代|102㎡现代轻奢风,时尚却不失质感,邻居们看了都纷纷点赞!
- 小空间|再买房,卫生间一定按这7个标准装5㎡花了30天,越用越顺手
- 收纳|卫生间装修要注意的10个问题,不看就要白花很多钱
- 封闭感|130㎡现代简约风,客厅背景墙灰色瓷砖上墙,又美又高级!
- 空间感|587㎡最美新中式别墅,处处诗意,第一眼就被玄关惊艳了
