大学教授的新家,果然教授的审美也很高级,全屋都和心灵“契合”
宋朝叶适曾在《受玉宝贺笺》中写道:“慰满民望,契合天心。”
句中“契合”在此为符合,吻合之意。 完美契合与否,完全来自个人自我心中的那份标准,尘世中的纷扰,内心深处的那份宁静,不也是这样,每一个居所都是为了和房屋主人达到完美的契合,让屋主拥有一个符合精神需求的理想家居。

【 外面的世界|大学教授的新家,果然教授的审美也很高级,全屋都和心灵“契合”】房屋户型
:四室
房屋面积
:273平方米
装修预算
:50万元以上
所在城市
:深圳
设计师:
王航
主要建材
:铁件、灰玻、特殊涂料、烤漆、实木皮

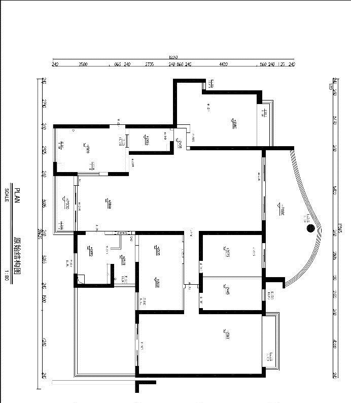
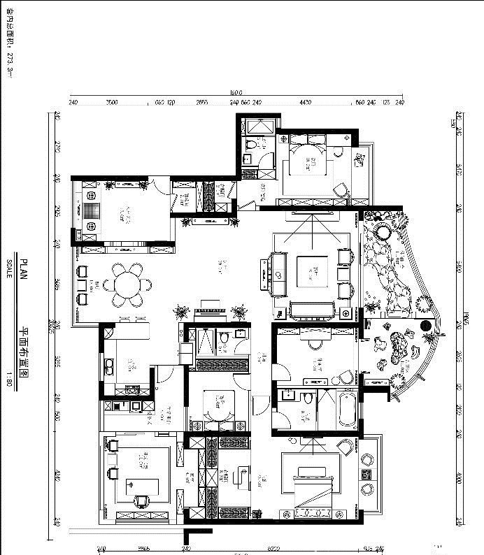
【户型图】
整个房屋的户型还是很规整的,在装修的时候也不需要过多的修改。这个房屋的主人是一个快要退休的大学教授,这个房子就是为了自己退休之后的生活准备的,希望可以有一个舒适静谧的环境。全屋的设计都和屋主的心灵契合,也让我们看到了教授高级的审美。


【玄关】
设计亮点:榻榻米茶室
没错进门玄关的对面就是一个榻榻米的小茶室,本来进门的位置就很宽敞,为了不浪费空间特意设计了一个小茶室。进门的位置摆放了带有中式韵味的鞋柜,家里的每一件家具都是精心挑选的,都有着属于它们自己独特的魅力。


闲来坐在窗边,看着外面的青山绿水,细细品味手里的茶水,听着鸟鸣风声,惬意的生活环境正是房屋主人理想的样子,可以让人放下一切享受当下的生活。


【客厅】
设计亮点:中式风格
整个客厅的设计都充满了浓厚的中国传统文化色彩,客厅的每一件家具和摆件背后都蕴藏着中式文化的安静和文艺,并体现着时空雕刻的痕迹,让人回到家里就会感觉十分的放松舒适,仿佛家里每一处都弥漫着书香的气息。

【厨房】
设计亮点:吧台划分空间
厨房利用吧台将餐厅和厨房的空间巧妙划分,平时回到家里可以在餐桌、吧台和厨房之间灵活的使用。厨房也是中式当中融入了现代的元素,更符合现在人的生活习惯。


【餐厅】
设计亮点:圆形吊顶
餐厅的顶部特意选择了圆形的吊顶,圆的设计在中式建筑和装修当中都是很常见的,餐厅的桌椅和餐边柜也都是中式风格的设计,在典雅中带有几份古朴的色彩。
推荐阅读
- 外框|房子装修一定要装这几样东西,好多人没听劝,后悔入住才察觉
- 购房置业|有钱人为什么都爱买西面的房子?听行内人说实话,才知买错了!
- 心塞|5个月装修一套房,硬装让我喜出望外,结果家具一上全废了!心塞
- 家具|家具展厅30余万红木家具被盗,嫌疑人竟是高学历海外留学生
- 装修|空调外机万万不能这样挂墙,若不是师傅提醒,我家都装错了!
- |外墙内保温如何施工?现场示例!萌新必看!
- 烂尾楼|水泥电线杆是如何制造的?里面的钢索有什么用?今天算明白了!
- 购房置业|男子为买房“假结婚”?!意外身亡后留下900万的房贷!两位“妻子”谁来还?
- 自习室|开在写字楼里面的共享自习室,有这4点优势
- 购房置业|世界反内卷国家,不买房,不加班,不鸡娃!我简直羡慕哭了
