
项目概况项目位置丨湖南衡阳图纸编号丨000126建筑尺寸丨面宽12.50m,进深13.7m建筑面积丨418.00㎡占地面积丨150.00㎡官方指导价 | 土建78.6万建筑高度丨10.8m建筑风格丨欧式结构形式丨砖混结构

01.
丨建筑效果图丨
【 造价|乡住土建造价参考78.6万,面宽12.5m×进深13.7m 二层欧式风格别墅】

△西北侧效果图

△北侧效果图

△西侧效果图

△东侧效果图

△南侧效果图
02.
丨平面布局图丨
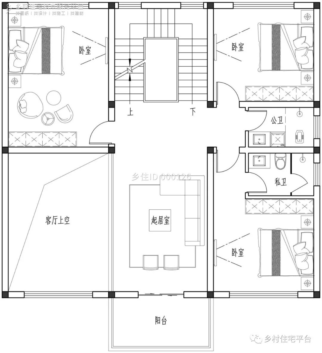
建筑布局:五室、二厅、四卫、一厨房、一堂屋、一阳台

△一层平面图

△二层平面图
03.
丨项目点评丨
适宜地域南方、北方
适用指数高
适用家庭家中有孩子和老人
别墅户型5室、2厅、4卫
图纸内容建筑、结构、给排水、电气、暖通
建筑共有二层,一层以待客休闲功能为主,空间布局方正且明确,玄关连接小堂屋的设计完全符合当地的生活习惯,西南侧的卧室位于风水上佳位置,客厅、餐厅、厨房作为标准配备位于东北侧。二层空间功能定位主要在于日常居住,楼梯间前方的起居室,虽然面积不大,但却有效丰富了二层的公共活动功能,向外延伸出的阳台空间则为建筑提供了更多的室外休闲空间。建筑整体为欧式风格,立面采用两段式设计,设计师通过同色系的深浅变化赋予建筑更多温度,造型上的对称又让建筑显得十分大气。建筑的南立面以不同的开窗设计提升视觉冲击力,搭配南侧的室外阳台空间,造型上的层次变化塑造出独特的韵律感。门头上方阳台选择欧式经典的护栏样式,让空间自然过渡。暖色的墙面整洁、大方,建筑通过空间退让搭配门窗造型,让整体造型更具古典美感。
推荐阅读
- 房价|黑龙江省各区县最新房价!(住宅)
- 来客动线|买房时记得避开这6类户型,否则越住越糟心
- 棚户区|省住建厅关于下达2022年保障性租赁住房、公租房建设及棚户区改造计划任务的通知
- 高一点|买高层住宅选几楼?建筑学家一席话点醒我,庆幸选对
- 房价|广东省各区县最新房价!(住宅)
- 春节|35㎡极限住宅改造:集商业和居住一体的城市住宅
- 房产证|农村住宅也要发“房本”了?农村有房的留意了,有5类房办不了证
- 住房公积金|好消息!公积金新调整相当于变相涨工资,购房者的机会来了
- 客餐厅|越来越多人中意横厅户型?住过才知道,究竟有多舒服!
- 小区|为啥有钱人明明有好几套新房, 却仍住在一个老旧小区 答案太真实
