小鑫今天分享的是一套建筑面积126平米的后现代风三居室案例,设计师以灰色调为主,加入了大理石和金属元素,还增加了一抹粉色作为点缀,让这个家给人一种时尚大气而又优雅浪漫的感觉,营造出了惬意、轻奢的居住氛围。

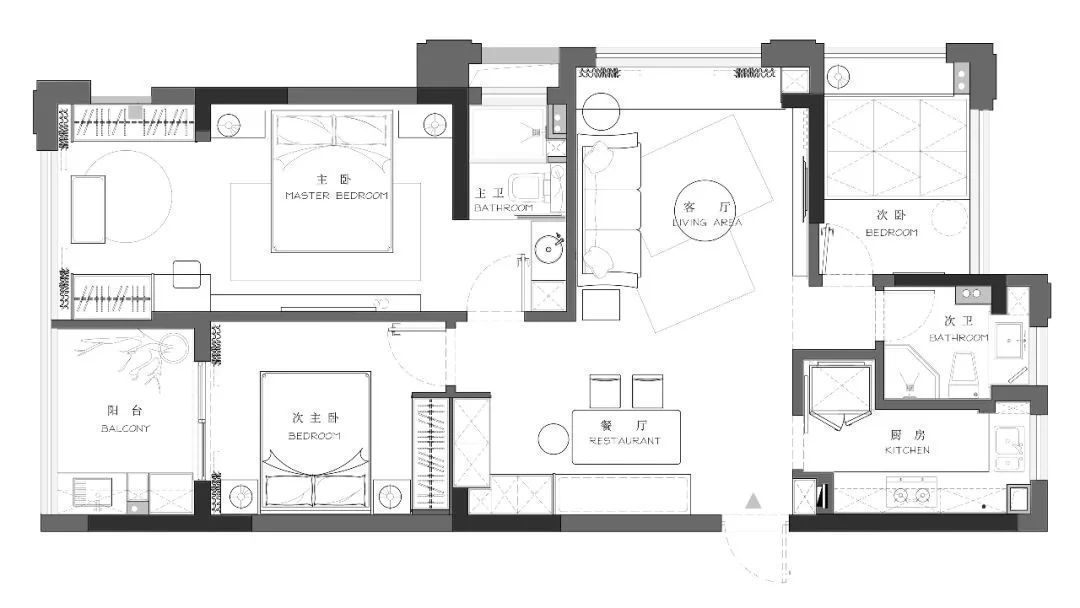
平面布置图

设计师在入户门的侧方做了嵌入式的鞋柜,而靠近餐厅一侧的墙面做上了大面积的穿衣镜,灰色调的墙地面带来了年轻大方的感觉。

餐厅是选择了卡座式的设计,从卡座延伸出到顶的柜子到次卧的墙面,让餐厅拥有足够的储物空间。皮质椅子和黑色的餐桌看起来很有格调感。

位于餐厅侧方的是客厅空间,客厅同样是选择了以灰色调为主,在背景墙和软装上加入一抹浪漫的粉色,让整个客厅变得更为优雅。

而客厅的电视背景墙处是做了大理石的造型,底部的电视柜悬空显得更为简洁。客厅侧方的飘窗两侧做上了柜子,在这里休闲也非常惬意。

厨房内部是做了L形的橱柜布局方案,白色的墙砖和灰色的地砖搭配乳白色的橱柜,让厨房看起来更有层次感又不显杂乱。

主卧室的床头靠背加上了背光的设计,顶部的主灯被舍弃,用嵌入式的筒灯代替,让人感觉更为简洁。卧室外的阳台包进卧室内,这样看起来也宽敞了不少。

主卫的洗手台是放在了卫生间的门外,地面的创意地砖可以延伸空间视觉感。淋浴房内做上壁龛来辅助收纳,使用起来更加方便。

次卧的设计非常简单,灰色调的背景墙和灰色调的软装结合,不同层次的灰色让卧室不会那么单调,简约年轻的感觉也很适合孩子居住。

【 客厅|126平的三居室,独特的后现代风,充满了轻奢感。】次卧同样做了干湿分离的设计,把淋浴房放在了转角的位置,弧形的淋浴房安全性会更高一些,通铺大理石瓷砖看起来也非常简洁大方。
推荐阅读
- 首套房|为什么很多“有钱人”都挑90平米的房子4点原因你没看到
- 华润|橡树湾南城新作!低总价上车五环 75平米户型可做普宅
- 返乡置业|单价≥10000的房子最火,超5成网友看好!20%网友计划买140平以上
- 飘窗|102㎡小三房,客厅不设阳台装落地飘窗,敞亮又大气让人羡慕不已
- 小户型|84平的简约风小户型,收纳做了这么多,也不会拥挤
- 三室|王健林购房“买3不买2”,面积不超110平,这才是懂行人
- 墙面|100平米两居室,全屋简洁大方又通透,沙发墙这样装,实在漂亮
- 装修|晒晒我家硬装,118平装修20万,家具家电还没进场就这么漂亮了!
- 复式楼|180平挑空复式楼,黑白灰的呈现,给人自然舒服的感觉
- 工业用地|一汽新摘37万平工业用地
