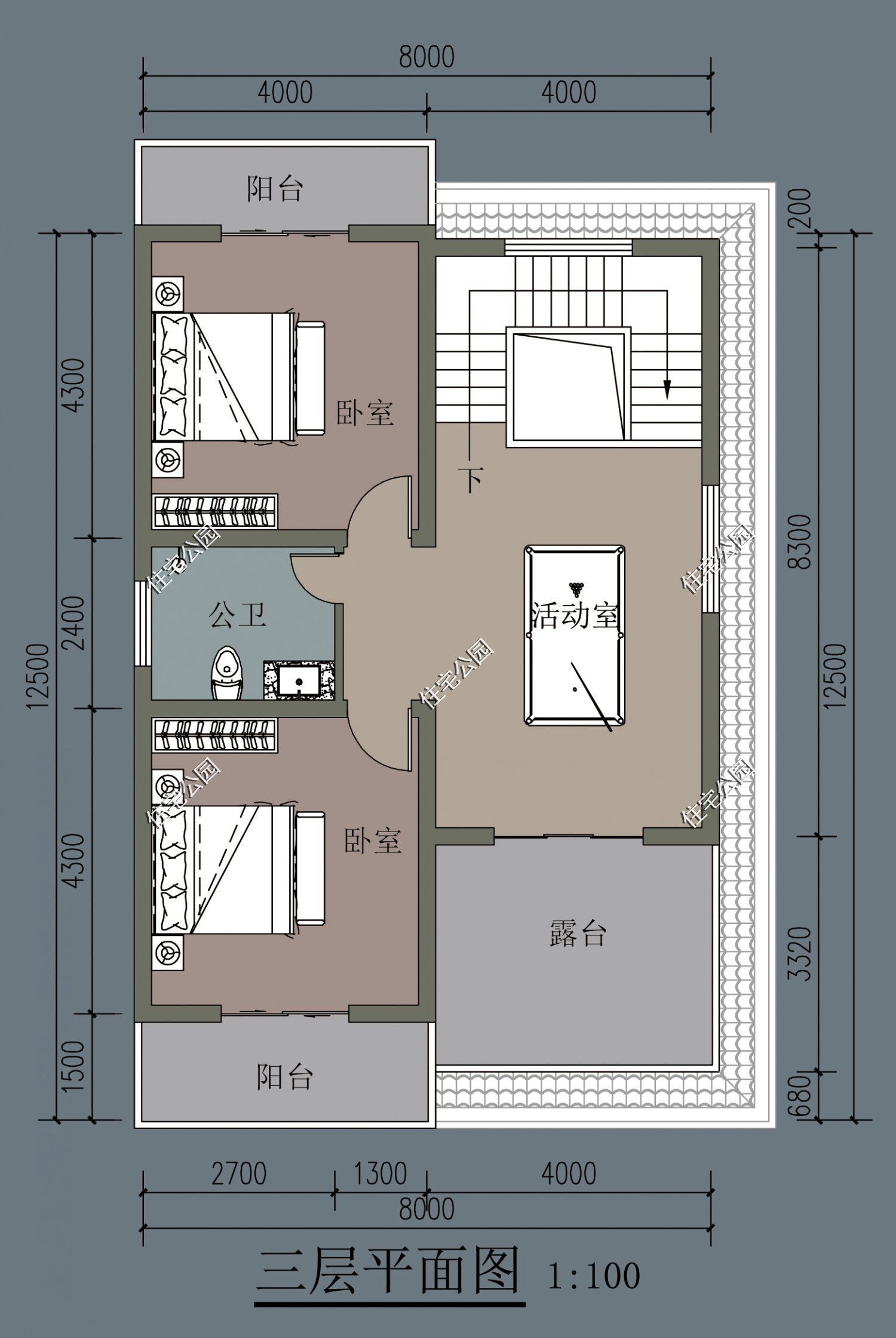
修建|精选10套三层户型图纸,占地面积均不足百平,尤其适合新农村修建( 三 )

这10套图纸都设计的非常好,占地面积不足百平,预算都在30万左右。如果你要回农村建房,你会哪一套呢?
推荐阅读
- 疯狂|1月20日广州新房网签210套,增城以43套再次蝉联榜首!势头强劲!
- 户型|实拍10套农村3层小别墅, 想省钱就建第6套, 养老房就盖第5套
- 大宅|精选15套中式大宅,农村就该建这样的房子,太美了
- 一线城市|还记得那位一口气买了10套房,月供百万差点破产的女孩吗她现状
- 养老房|养老房还是一层好,10套一层农村户型,建一栋出来送给父母正合适
- 预算|面宽8米也能建出大气别墅,10套小面宽图纸,哪套更适合你家?
- 楚河汉界|万达“怒砸”500亿修建的“楚河汉街”, 现在还有人去吗!
- 装修|感谢工头大舅!装前得到这18条装修建议,赶紧照着施工,赚了3万
- 罗马柱|谁说农村别墅一定要有罗马柱?看看这10套户型,每套颜值都很高
- 农村|10套农村一层养老房,有院子有火炕,15万的造价盖哪套都不亏
