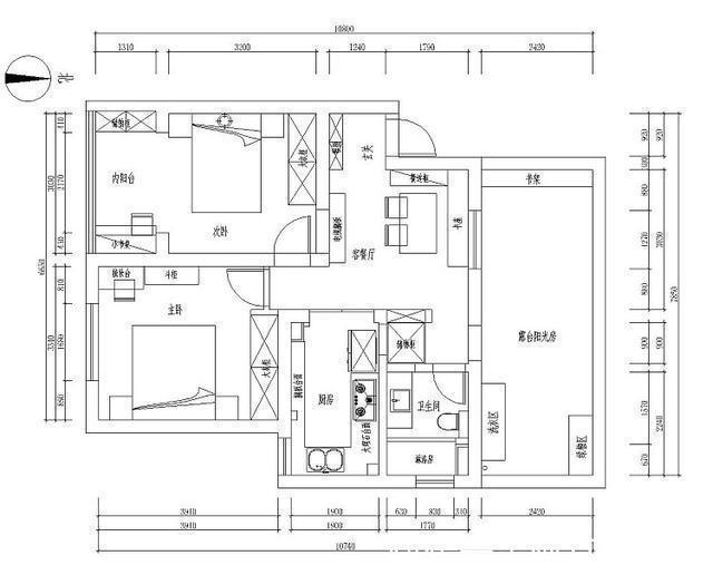
今天的晒家屋主是一对夫妻,买下房子时两人刚毕业,颇为囊中羞涩,因此选择的是小户型,客厅面积小,选择客餐厅一体化设计。装修上也是在简洁中基础上追求美感,预算不多,但最终出来的效果不失家的温暖,也能看出屋主的生活情调。房屋信息坐标:上海户型:两房一厅面积:60-80㎡

入户

玄关柜上下分开,中间留台面摆放进出门随手物品,底部镂空放置常用鞋。按照使用习惯合理设计,更显整洁。

进门右手边放置了一排挂钩,挂放雨伞、围巾、袋子等物品。客厅客厅面积比较小,为了让空间不过于拥挤、压抑,屋主舍弃了沙发,将客餐厅功能合为一体。

以餐桌作为客厅中心,两侧相对设置卡座和椅子。两人在家时就坐在卡座边吃饭边看电视,有客厅来也可以有相对余裕的空间。

卡座设计成L型,一边卡座一边餐边柜,储物功能非常强。

餐桌对侧敲了一部分墙,嵌入书柜,与厨房门保持等高,显得更整洁。厨房

厨房是长条形的,橱柜做成U型空间稍显不足,L型的话储物空间又不够,因此屋主折中了一下,在L型橱柜的基础上,加了一块搁板,大大增加台面操作面积。

即使平时工作忙,屋主仍会在厨房精心准备便当,一日三餐,都不能亏待自己。

主卧

从客厅望向卧房的一角,素雅的配色点缀亮眼的天蓝色床品,温柔静谧,一下让人感觉到家的幸福感。

因为卧室空间不大,屋主特地在索菲亚定制了通顶式百叶窗趟门衣柜,将储物功能发挥到极致,也不留卫生死角。

衣柜分区收纳,看上去一目了然。

为了增大储物空间,两个卧室选的都是上翻盖的高箱储物床,用于收纳使用频率不高的物品。次卧

卧室和一个朝南的阳台相连,由于朝南,冬季的光照比较好,所以也布置了晾晒西戎,其他季节的晾晒主要在背面阳光房,内阳台的西侧做了到顶的储物柜,和墙垛齐平,不会显得压抑。

阳台东侧则做了一个小型家庭工作区,方便在家办公。

推荐阅读
- 屋主|56㎡小户型老房改造,小而美的设计!
- 装修|淋浴房还可以坐着洗澡,一开始很不理解,装修后才发现太实用了!
- 小钱|游点好笑!收手机的新方式,一抓一个准!这老师怕是柯南看多了?
- 购房置业|上海女子拍下对楼住户家无敌露台,超大空间网友酸了:买房送操场
- 公示|一处体育中心项目、一处小型口袋公园!市北两项目规划公示,配套升级
- 碧桂园|小城市的房住不炒,遇上返乡置业
- 小户型|发现丈夫赠人房产 妻子怒讨买房款
- 小房间|参观140㎡大婚房,朋友都夸餐边柜有档次,我却更喜欢主卧的飘窗
- 楼层|对于买房选楼层,一旦你忽视这5件小事,就只能买到“垃圾楼层”
- 木纹板|装修案例欣赏:小北欧风格的居家设计,简洁的同时又不失温馨感!
