储物柜|98㎡美式新家,半包9.6万,只是因为改了这3处,越看越实用
所谓慢工出细活,装修这事也一样,拿到钥匙不要急着搞装修,自己也要对房子有所规划。同样的户型,合肥名门湖语小区这套美式风,就要比邻居家实用好几倍,关键就在于他家的这3处改造,越看越实用!

户型:三室一厅
面积:98㎡
风格:美式
半包价:9.6万
小区:合肥名门湖语

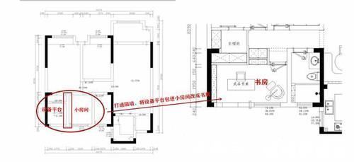
房屋改造亮点:
玄关处厨房面积小,采光差,与餐厅的隔墙敲掉换成玻璃砖,光线好,装饰效果也不错;

主卧门更换了方向,不仅内部隔个衣帽间,而且走廊处还多个嵌入式储物柜;

将赠送的设备平台包进小房间里,改成个宽敞的书房。

玄关柜是根据业主的生活习惯来设计的,上面的储物柜和下面鞋柜之间一般都会留空,用来放装饰品或者钥匙、手机等小物件,而底部还要预留20cm的空隙,放些平时穿的鞋子。右侧墙上挂衣服,下面是换鞋凳,坐着换鞋更轻松。

厨房面积只有4.8㎡,空间相当小,窗户周边放弃吊柜设计,以免遮挡光线,水槽边设计两个水龙头,一个自来水,一个直饮水,使用起来更方便卫生,另外墙面还有一排插座,买再多小家电都可以用。

由于厨房窗户小,光线比较差,设计师选择将厨房跟餐厅之间的隔墙改成了玻璃砖墙,这样不仅能透光,而且就连餐厅也能增色不少,算是家里的一大亮点。

【 储物柜|98㎡美式新家,半包9.6万,只是因为改了这3处,越看越实用】卡座餐厅很适合小户型设计,节省空间的同时能收纳,这个高40cm的卡座比较特殊,拐角处设计成斜面,这样坐在上面更舒服,另外卡座底部还贴心地预留了插座,冬天吃火锅安全又方便。


客厅里是很经典的2+1+1的沙发组合形式,中间是茶几,看起来更加规整,空间足够宽敞,靠坐起来也很舒适,一家人围坐在一起聊天,其乐融融。

设计师利用一些软装来装饰整个空间,比如墙上的挂画,茶几上的鲜花,沙发上的亮色抱枕等。

推荐阅读
- 屋主|56㎡小户型老房改造,小而美的设计!
- 现代风|168㎡现代风,带着浓郁的归属感与愉悦感
- 深色|155㎡简约风,承载着三代人的生活,不花哨让家务少一半
- 混淆感|146㎡北欧经典白色三居室,诠释令人心醉的优雅
- 饱和度|173㎡轻奢新中式,古典和现代的碰撞,唯美浪漫!
- 背景墙|97㎡现代风,以时尚打造空间,以新颖突出特点
- 地板|160㎡四居室,玄关比我家卧室都大,这才是真正的低调奢华有内涵
- 卫生间|129平现代美式三居室,打造出一个舒适又温馨的美式家
- 棚户区改造|开盘预告|合肥又有6盘要加推,均价1.39-2.54万/㎡全都有
- 小房间|参观140㎡大婚房,朋友都夸餐边柜有档次,我却更喜欢主卧的飘窗
