又快过年了。过年有两个最大的好处,一个是让人们得到休息,另一个好处,就是让人们得到了反思的机会。相信很多人回趟农村老家过个年,再次返城的时候,心中最想的还是努力要挣钱,以便能够把家里的房子好好盖一下。今天我们来给大家介绍一栋农村经典二层别墅,算是近年来全国各地建得最多的一个户型,整洁好看又经济实用,造价也不会太高,大家可以把它当成个“小目标”去实现。

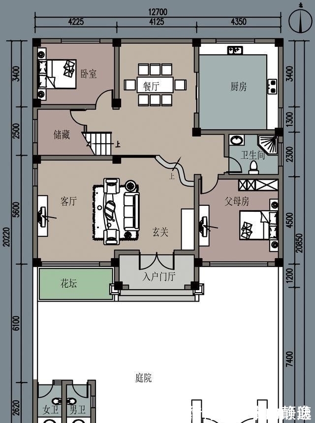
如下图所示,这栋二层小院别墅,红色的瓦顶,鹅黄的墙身和文化石的装饰,简单整洁又实惠。它的面宽为12.7米,进深包括院子墙身长度,为20.75米, 北方农村一般的家庭都有这么大的宅基地可以建造。

一层平面图上,进入院门,可以看到,入户门两边分别是客厅和父母卧室,客户墙外还设了花坛。这些房间都是向阳的,这样屋里会很亮堂,而且多接受阳光照射,对老人身体有好处。再往里是厨房、餐厅和卫生间,以及一间次卧,都是传统的布局,很简单,建造装修都不费劲。

二层平面图上,上楼来我们先看向阳一面的主人房,起居室和客卧,三间都连着阳台或露台并且向阳,人们在房间里随时可以出来透会儿气,是一种比较简单实用的设计。然后再往里边看,除了卫生间以外,其余三间分别是书房,家庭影音室和乒乓球台,看到这些,您就可以想见住在这屋里的人们生活有多精彩了吧?

【 建房子|农村自建经典实用二层别墅,书房、卧室和影院,人生快乐莫过于此】农村真的是广阔天地,人们在自家宅基地上建房子最大的好处就是可以按照自己的意图去设计建造自己想要的户型。在这样的别墅里居住,看书、打球、看电影、陪父母晒着太阳,喝茶聊天…人生的幸福莫过于此。过了年,还是赶紧做计划努力挣钱建造一栋好房子吧。
推荐阅读
- 楼市|房子降价对楼市而言反倒是件好事
- 购房置业|经济学家:老百姓60%的钱花在房子上很危险!网友:说得很对
- 房贷|“重启”拆迁?这2类房子或全拆重建,两类人受到影响
- 客厅|参观向华强和陈岚的豪宅,房子层高太矮了,住着不压抑吗
- 施工|面宽均为12米的两栋自建房,简单施工易,造价25万上下
- 大门|房子大门万万不能朝这地方开,师傅看了摇头,怪不得我家越住越穷
- 购房置业|为什么买房不要买靠边的房子?这些问题要注意,开发商不会告诉你
- 炒房|房子有多难卖?三线城市炒房者:降价20万送车位都卖不掉
- 建房子|面宽11米, 进深16.5米的农村三层别墅, 前后有花院还带车库, 完美!
- 购房置业|买房界的黄金法则:好房子横向要宽、纵向要薄,多面朝南
