坐标厦门,这是一套42平米的单身公寓改造成三口之家装修案例,面积虽然很小,但是在厦门寸土寸金的地方,拥有一套属于自己的房子已经很难得了。小户型在装修上每一平米都要锱铢必较不能浪费,原始格局已经无法满足三口之家生活,屋主提出要有小两房、客厅、餐厅、厨房的功能,外加一个男主学习办公区和一个孩子娱乐区。小编觉得已经是极限了,但装完的效果不仅满足屋主要求,连收纳空间都很大,简直太棒了!堪称小户型装修模板,我们一起来看看吧。


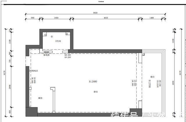
这是这套房子的平面设计图,整体结构并没有太大改变,只是做了一些改动:
1.卫生间洗手盆拿到外面,不仅和洗衣区形成互动,同时也让卫生间有了单独淋浴房,设计成干湿分离。
2.拆掉厨房墙体,改成主卧,在外面做成开放式厨餐厅设计,满足屋主小两房要求。
3.把阳台和客厅连在一起,让公共空间更加宽敞明亮,也是孩子的小卧室。

玄关
入户即是玄关,设计利用洗衣机和烘干机叠放方式,解决小户型的晾晒问题,旁边设计成洗手盆,洗漱洗衣一体,实用性大大提升同时,同时也让卫生间有了单独淋浴房,方便又实用。

玄关
长度90公分的洗手盆,镜箱+台盆一体洗手柜组合,大大提升收纳空间,地面用北欧小花砖点缀,丰富了视觉层次,也把玄关和客厅区域划分开。

玄关
玄关另一边是一个鞋柜,上下储物柜,中间留空放置包包、钥匙等小物件,底部悬空放鞋子。入户门两边固定一根晾衣杆,功能性也很强。

客餐厅

客餐厅
从客厅看向玄关,开放式厨餐厅设计,整面墙的收纳空间,用白色家具和原木色搭配,最大化让人感受到舒适自然,宽敞明亮。

厨房

餐厅
厨房和用餐区连接在一起,开放式设计,方便女主人做饭同时照看孩子学习和玩耍。一字型橱柜让空间利用率最大化,靠墙放置冰箱,灶台、和操作台,用餐区旁边是洗菜盆,墙上安装即热式热水器,中间空地上摆放厨房置物架,节约空间。

榻榻米
阳台现在成为孩子的卧室,和客厅之间顶部预留窗帘位置,晚上睡觉时拉上窗帘,就形成一个单独的榻榻米房间。床下面还是储物柜,满足收纳需求。
推荐阅读
- 收纳|去邻居家参观才知道,卫生间不装柜子这样设计,防潮耐脏好清洁
- 她家148平米,进门就被玄关迷住,不做吊顶跟背景墙,阳台超漂亮
- 薄荷蓝|走进她家,才知什么叫美观与实用并存,全屋温暖又清爽,太舒服了
- 收纳|打柜子不是越多越好,6个地方别随便装,多装一个都闹心
- 乳胶漆|看她家装修,比样板房还漂亮,电视墙特别实用,值得做参考!晒晒!
- 收纳|这8个位置装修记得装柜子,收纳面积增加20㎡不是问题!
- 户型|北漂夫妻买下24㎡婚房,柱子4米宽,窗台就占户型面积一半
- 购房置业|为什么这个阿姨开发商给她退房后,还要大闹售房部
- 老房|她坚持买下73㎡一楼老房,完工后逆袭『双花园美宅』,太睿智了!
- 罐罐|听我一句劝:厨房别再摆瓶瓶罐罐,学她家这样做,美观方便还不贵
