#百度家居大师团#虽说美无国界,但谈到审美,东西方人的差异还是比较大的,其中最为大家所熟悉并津津乐道的,便是对身材相貌的不同看法了。比如我们都觉得女生脸上长雀斑很影响形象,想尽办法也要除斑淡斑,恨不得把整张脸皮都换掉才好,可人家外国人就觉得这样的脸很性感。我们都追求以瘦为美,可外国人就喜欢卡戴珊那种加大号的身材。其实审美差异不止在这方面,对于家居风格的喜好也有很大的不同。比如外国人很喜欢那种粗犷的有点暗黑系的工业风,但我们大多数中国人都欣赏不来,觉得像毛坯。而欧美电影中经常出现的那种带点复古怀旧味道的的美式乡村风,也在我们这里不太受欢迎,觉得有点村有点土。那今天的这套装修,应该就比较符合我们中国人的审美了,配色上淡雅柔和,气质上高雅沉静,符合大多数人对理想家居的想法,晒给大家看看。

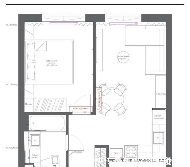
▲ 先来看看户型图,这套房子的户型很规整,一进门就是换衣换鞋的地方,然后左右两边,分别是卧室、卫生间以及一体式的客餐厨。虽然是单面采光,但除了卫生间外,其他区域都很明亮,随我一起去看看这套案例有哪些技巧可以学习参考吧。

▲ 一入户,可以看到左侧的墙面上饰有一面全身镜,而它对面的衣帽柜,则是采用的镜面门,大面积的镜面运用 ,不仅能起到放大视觉空间的效果,也能提升室内明亮度。门的上方,也利用起来设计了一组吊柜,增加了实用性。

▲ 由玄关向右拐过来,就是开放式的客餐厨了。厨房呈L型设计,浅蓝色的橱柜配上爵士白的瓷砖,再加上吊柜底部的灯带和天花板上的线条灯的点缀,整个厨房区域被衬托得高雅明净极了。

▲ 餐厅区同样采用了清爽的蓝白配色,以白色的圆桌,搭配蓝色的丝绒椅,再点缀轻奢质感的球形吊灯,一个又唯美又有格调的就餐区就展现在我们眼前了。餐厅侧面,还有一个木色的展示架,可以摆放书籍、相框、艺术品之类,营造生活氛围或艺术气息。
【 东西方人|虽然是外国的装修案例,却很符合中国人审美,配色太美太有韵味了!】

▲ 客厅的电视背景墙,采用大海图案的墙纸,搭配白色的壁挂电视柜,而沙发墙这边,则在整体的浅色调之外,同样加入了带有蓝色底纹的装饰画作为呼应,整个空间的配色非常一致,又美又有意境,带给人一种漫步在海滩边的视觉印象,让人感觉非常舒适。

▲ 一进入卧室,眼前就有种海天一色相互交融的感觉,非常细腻、非常雅致,很有种古典韵味。

推荐阅读
- 防水|东方雨虹为何不惧地产下行?
- 灵魂深处|全屋定制案例|儒雅新中式,展现灵魂深处的东方情怀
- 房价|2022年,大东“1.5环”爆量,房价“蠢蠢欲动”
- 密封夹|我家厨房10个超级可爱的小东西,好看又好用,做饭心情都会变好!
- 哈尔滨|东户房和西户房“区别”在哪?听听建造师说完,庆幸知道的早
- 子女|山东:保障租房者基本公共权益 逐步实现租房落户
- 房价|东莞新房价格真的降了吗?盘点2022年东莞10大在售新楼盘价位
- 明贴|房子装修一定要装这几样东西,好多人没听劝,后悔入住才察觉
- 山东省|好住│金牛岭片区的刚需户型,两梯两户还配入户花园
- |西晒房、东晒房,一个没人要,一个抢着买,有钱没钱万万要选对
