
#百度家居大师团#

户型分析

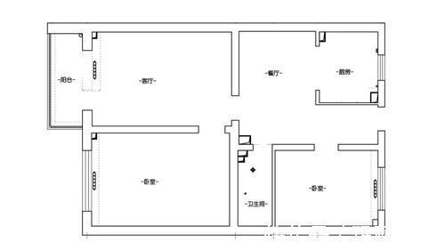
从原始户型图中可以看到,这是一个非常典型的两居室格局,动静分区,一侧是厨房、餐厅、客厅,另一侧是两间卧室以及卫生间。

改造后,只拆除了部分卫生间和厨房的墙体,将客厅改为主卧室并增加衣帽间,餐厅改为客厅,厨房空间打开以便充分引入自然光线。整合入户一侧的卫生间和小卧室格局,扩大实用性更强的卫浴空间。

一进门的左手边便是一整墙的收纳柜,最外侧的两扇对开门可作为鞋柜使用。除此以外,房屋没有做吊顶,上排增加吊柜设计,尽可能给这个家增加收纳空间。

电视墙位置采用了对称的处理方式,将次卧门和卫生间门做隐形门设计,这样做让房屋立面看起来更加平整。

客厅

开放式厨房的最大好处就是解决了客厅的采光问题,可以将厨房窗外的光充分引入。

简单的双人沙发、圆形茶几,再加上一部投影仪,客厅不需要太大,够用就好。墙面还加入了黄色色块点缀,取代了装饰画的效果,非常有趣。

餐厨

简洁实用的小厨房,经典的原木+白的配色设计,非常适合小户型实用。增加的中岛台可以作为屋主二人吃饭的位置,后期随着家庭成员的增加,在客厅增加可折叠的餐桌即可。

在沙发旁边添置一个置物架,用来放置小家电和零食,紧挨中岛台也是很方便,平时可以热饭菜、煮咖啡。

卧室1

卧室1

低饱和度的淡绿色奠定了整体清新自然的风格,特意根据户型特点,设计了设计为L型衣柜,依旧采用了平板门的形式,再加上白色调,营造干净利落的视觉效果。
推荐阅读
- |“最惨购房者”相关话题登热搜榜首,到底是怎么一回事?
- 武汉|合肥楼市新房火热的原因找到了
- 乳胶漆|等买了房,就照他家这么装,全屋不吊顶,不做背景墙,越看越耐看
- 深圳市|2021年在珠海买房的人都被套牢了吗?珠海十大热门区域哪里最抗跌
- 房地产行业|四川成都一房产销售公司表彰会上,一女子月收入98万余元引热议!
- 购房置业|暖气片上边热下边不热的原因及解决办法
- 茂南|茂名茂南热门楼盘现场最新视频,点击查看
- 越城|请查收从绍兴越城热门楼盘现场传来多张谍照(组图)
- 成都|成都一房产销售公司表彰会上,一女子月收入超98万元引网友热议!
- 用力过猛|139以简约代替生活的繁忙,打造热爱生活的一个家
