农村城市化的发展,让农村变得越来越美丽,越来越宜居。
交通的便利,以及各种交通工具在农村的普及,让城乡之间往返更便捷,这样吸引不少的退休者纷纷回乡定居,部分年轻人回乡置业。
有房才有家
,现在农村自建房除了外观好看,功能也越来越丰富,堂屋在有些农村是必不可少的功能空间,同时,城市别墅的挑高客厅,在农村也渐渐被喜爱。
因为,
复式楼空间大气,空间利用率比较高,而且里面的采光通风也非常好
。
贝聿铭先生说过:生活就是建筑,建筑是生活的镜子。
如果2022年你准备在农村建一座舒适宜居的复式楼,我推荐您看看这个户型。

户型设计尺寸开间11.42米,进深12.06米,基底占地面积140.56平方米,总建筑面积366.64平方米,抗震设防8度,挑高客厅,旋转楼梯。
标准的层高设计让空间居住更舒适,一层设计3.6米高,二层和三层3.2米,建筑总高度12.065米,采用框架结构设计,坚固抗震,安全舒适。

里面的功能也丰富实用,一层入户空间可以做个堂屋的功能,左边是挑高的客厅,后面是餐厅和厨房,餐厅有后门,方便从后面进入室内就餐,也方便厨房垃圾从后门运出。
一层设计有南向老人套房,采光充足,生活方便,所以作为养老房,这个户型也是不错的选择,后面还有1间次卧,1个公卫。

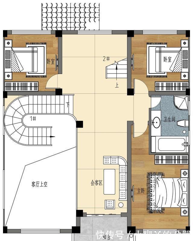
二层设计一个客厅,可以做为家庭私密的活动空间,1个大公卫,可以淋浴,也可以盆浴,3间卧室,1个阳台,不但增加室内的采光和通风,还可以晾晒和休憩。

三层实用的观景大露台,夏天的时候抬头就可以看到星空,中秋节,也是一家人共同赏月的好去处。南向主卧带出入大阳台,增加室内的采光和通风,让居住更舒适,后面2间次卧,1个公卫,南向书房空间让学习舒适方便。
这座农村复式别墅奢华典雅,层次丰富,大面积采用玻璃,室内采光充足,独特的圆柱设计,增添了房子整体的庄重感,正面的阳台和露台,美观而实用,素雅的黄色涂料和棕色外墙面砖,搭配红色的坡屋顶,色彩和谐,处处散发出优雅迷人气息。
现在农村自建房,不一定非得说是豪华奢侈,那对我们很多人来而言不切合实际,但也要显得有品位、大气,同时符合农村生活习俗、经济实用。
如果喜欢请关注本号,让你自建房不迷路,提供经典的设计方案供选择参考。
往期户型分享阅读
农村宅地90-120平米,可以建什么样的房子?这5套图纸你喜欢哪套
回农村自建三层楼房,参照这3套图纸,谁还敢说农村房子土?
【 贝聿铭|12×12米现代三层复式别墅,农村就该建这样的房子,颜值高还】2022回农村盖养老房,最新3套二层复式别墅设计,您喜欢哪一套?
推荐阅读
- 现代风|168㎡现代风,带着浓郁的归属感与愉悦感
- 饱和度|173㎡轻奢新中式,古典和现代的碰撞,唯美浪漫!
- 背景墙|97㎡现代风,以时尚打造空间,以新颖突出特点
- 卫生间|129平现代美式三居室,打造出一个舒适又温馨的美式家
- 三居室|118平现代风三居室,一个简单而纯粹还原生活色彩的家
- 施工|面宽均为12米的两栋自建房,简单施工易,造价25万上下
- 简单感|现实的平衡取舍,才是生活之道!143平现代风格设计欣赏!
- 轻奢风|什么样的生活空间,才算得上是美好现代轻奢风,大道至简
- 楼盘|现代·森林国际城|仙北新拍现场图片,实时了解楼盘新动态
- 贵州|利落挺括,12×11米现代二层别墅,4卧2厅好格局开启全新生活
