今天晒晒自个家的装修,打扫干净准备入住了。通风的这段时间时不时去新房看看,打扫下卫生基本能保持干净。自个装修不是一件轻松的事,找施工队、买材料都要自己来,加上要上班实在累得不行。

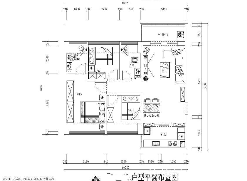
房子的户型图如上图所示,把能利用的空间都一丝不剩的用起来了。虽然紧凑,视觉上却是显得宽敞简约,主要还是白色墙漆的功劳,增白增亮的效果非常棒。

电视背景墙选择瓷砖上墙,瓷砖是仿大理石瓷砖,一片50块左右,具体看个人喜欢什么花纹。两边做了亮片装饰,擦得很干净都可以当镜子使用了。
【 打扫|晒晒自个装修的新房,全部下来不到10万,浴室估计很多人没见过!】

电视背景墙特写,一张黑白电视柜经典时尚,就是不好打扫卫生,灰尘粘在上面要擦很多遍才能干净。还有就是尺寸不对,长了一点,导致电视柜和背景墙中间留了比较大的缝隙。

客厅看向餐厅,对于厨房的这个设计还是非常满意的,亲戚上门也都夸厨房好!把厨房的一面墙都砸掉,两边做橱柜,中间做玻璃推拉门。这样不仅鞋柜有了,还不占空间面积。而且把厨房的门开大看起来也更为通透。

屋内的灯光用亮白搭配亮黄,柔和明亮看起来很舒服。

厨房的做了L型动线设计,活动区域大显得很宽敞。

卧室什么都好,就是靠外墙有承重梁,比较难看,而且容易磕到头。

这个浴室我想很多人都没见过,落地飘窗虽然好,但是洗澡上厕所还是比较尴尬的!定制的升降帘还没到~

阳台选择仿古砖,然后做了细钢丝防盗网,美观又能保障人身安全。

文章由齐家妙妙编辑,部分图片源于网络,侵权删!
推荐阅读
- 全屋|次卧空间小,老婆灵机一动不装“床”,孩子一眼就喜欢上了晒晒
- 亮点|等了6个月终于能晒晒新房了,都挺满意的,客厅是最大的亮点
- 主卧室|为了20㎡小院子,老公坚持买一楼,完工进屋就被迷住了,晒晒
- 乳胶漆|看她家装修,比样板房还漂亮,电视墙特别实用,值得做参考!晒晒!
- 空间|晒晒我110㎡新房,朋友都夸比200㎡还实用,来了就想赖着不走了!
- 房子|单亲母亲送女儿68㎡小家,每一寸都让年轻人爱不释手,值得晒晒!
- 襄阳|晒晒我家260万建的农村别墅,有人开800万我都不卖!
- 时尚|297㎡时尚美宅,华丽优雅的简美轻奢风,晒晒现场照
- 装修|晒晒农村婆家自建别墅,建房装修花200多万,是全村最豪华的!
- 无锡|晒晒我的农村别墅婚房!主卧50平,还有家庭影院和地下游泳池
