在好多农村各地家里建别墅,都一定要跟风,建一个三四层的大别墅才够气派。但一点都不实用,特别是家里的年轻人都出去打工,所以其实现在有很多一层的农村小别墅,建出来的效果一点都不输那些三四层的。今天小编推荐4款10万的一层房设计图以及户型图,喜欢的看看吧!
第一款:一层4间自建房别墅设计图以及户型图,占地160平左右

效果图展示
简单实用。入户既是玄关,与客厅连接一起,使空间更加宽敞,餐厅和厨房相连,用餐方便,两间卧室朝北,一间朝南,有独立卫生间。外观精致漂亮,真正做到了好货也便宜。
占地面积:17.5m*9.5m,162.13平方米左右;
建筑层高:一层;
建筑高度:6.225米(含屋顶);
设计功能:
一层户型:玄关、客厅、卧室(带卫生间)、卧室x2、卫生间、厨房、餐厅

户型图展示
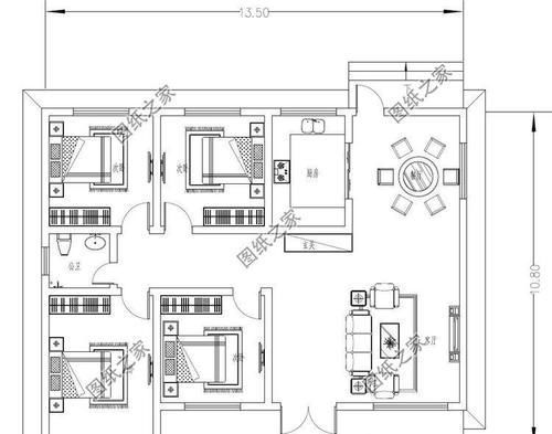
第二款:最漂亮的简单实用一层四开间小别墅设计图以及户型图,4卧2厅带玄关

效果图展示
年轻人都喜欢。外墙仅用简单的米黄色喷漆装饰,底部采用棕色文化石做基脚,蓝色的屋面瓦,精致美观。建筑入户设计玄关,和宽敞的客厅,建筑预留四间卧室,分别位于建筑的两个角落,互不打扰。
占地面积:13.5m*10.8m,138.82平方米左右;
建筑层高:一层;
建筑高度:7.987米(含屋顶);
设计功能:
一层户型:玄关、客厅、卧室x4、厨房、餐厅

户型图展示
第三款:回农村盖一层养老房别墅设计图以及户型图,面宽16米

效果图展示
四开间方案图,经济实用接地气!大气的蓝色屋顶与天空相媲美,经典的罗马柱和凸出窗户别具一格,米黄色外墙漆与淡黄色文化石交相呼应,经典耐看,不会过时。
占地面积:16m*8.9m,127.35平方米左右;
建筑层高:一层;
建筑高度:6.15米(含屋顶);
设计功能:
一层户型:玄关、客厅、厨房、餐厅、卧室x3、卫生间

户型图展示
第四款:带院子的一层农村别墅设计图以及喜欢他,造价不高,养老房首选

效果图展示
家里有老人家一般比较适合住一楼。别墅外观是以灰色为主,搭配蓝色坡屋顶,整体大气沉稳,精致美观,内部布局合理,院子里可以放松休息,同时还能种点花花草草,听起来还是很美好的。
占地面积:11.83m*12.5m,144.819平方米;
建筑层高:一层;
建筑高度:6.741米(含屋顶);
设计功能:
一层户型:客厅、厨房、餐厅、卧室X3、卧室(带卫生间)、储藏室、卫生间

户型图展示
推荐阅读
- 屋主|56㎡小户型老房改造,小而美的设计!
- 春节|如果能重来,阳台一定“9不装”,并非迷信,是过来人的经验教训
- 装修|乔迁新房3月以泪洗面!当初的不理智,连犯15个极品装修坑!作孽
- 现代风|168㎡现代风,带着浓郁的归属感与愉悦感
- 深色|155㎡简约风,承载着三代人的生活,不花哨让家务少一半
- 混淆感|146㎡北欧经典白色三居室,诠释令人心醉的优雅
- 造纸|生活用纸,黄卫生纸真的好于白色卫生纸吗?来听造纸员工怎么说!
- 对象|廉租房和公租房的有什么区别?
- 饱和度|173㎡轻奢新中式,古典和现代的碰撞,唯美浪漫!
- 小钱|游点好笑!收手机的新方式,一抓一个准!这老师怕是柯南看多了?
