大家庭居住,对于房屋的第一要求就是要够住,这个够住体现在居住层面上,也体现在楼层设计上。今天为大家带来的这套户型,着重考虑了大家庭的居住习惯,多卧室、独立楼层,衬得整栋建筑清透不沉闷。
【 户型|13×13米四层农村别墅,大家庭建房首选,12间卧室绝对够住】并且利用层高优势,在四层设置观景阳台,再加上些许玻璃元素,整栋别墅室内视野广阔,采光通风性强,实现精致的居家生活。

户型基本信息
占地尺寸:13.5mX13.8m
占地面积:177㎡
建筑面积:663
建筑高度:16.55
建筑结构:框架结构
建筑情况:12卧 2厅 3起居室 8卫 6衣帽间 2书房 4阳台

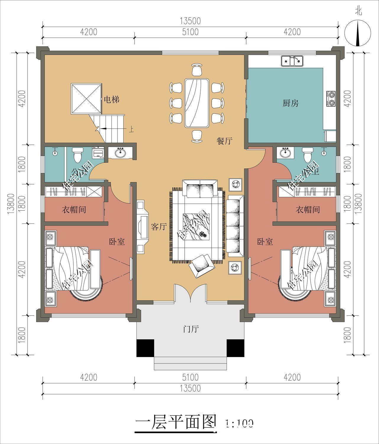
平面布局图:
开放式的布局理念,将空间灵活打造,绝佳的视野宽泛效果让居住者的身心都得到舒缓。南北通透的格局,享受微风拂面的感受。
双卧室朝南均带衣帽间,落地窗扩大了居室的整体面积,细腻的布局从这些小细节上就能看出一二。
室内电梯更是一绝,上下爬楼再也不累人,这就是设计带来的魅力。

二、三、四层布局一致,强调空间氛围感,三卧+起居空间的配置,满足每一位家人的居住要求。
南立面设计阳台,扩大别墅采光面,室内通风效果更佳。



关注本号,更多农村自建房户型图欣赏,还有建房小知识,一手掌握。
推荐阅读
- 屋主|56㎡小户型老房改造,小而美的设计!
- 小户型|发现丈夫赠人房产 妻子怒讨买房款
- 卫生间|什么才叫好户型?来看看这5个标准,你家房子符不符合?
- 修建|精选10套三层户型图纸,占地面积均不足百平,尤其适合新农村修建
- 住房公积金|什么才叫好户型?来看看这5个标准,你家房子符不符合?
- 民营企业|小户型必看扩容6招,让家里每 1㎡ 都不浪费!
- 购房置业|农村建新房就选这套四层别墅,占地100多平,8间卧室人人都有地睡
- 山东省|好住│金牛岭片区的刚需户型,两梯两户还配入户花园
- 小知识|农村建新房就选这套四层别墅,占地100多平,8间卧室人人都有地睡
- 公卫|回农村建房,展示一套“牛”户型,二楼稍微改动就完美了
