今天分享的是一套40年的老房改造案例,这套老房的建筑面积为130平,屋主喜欢干净利落的感觉,所以改成了北欧风的家,房子很大,但却只划分出了两间卧室,各个空间都非常的宽敞,让人羡慕不已。

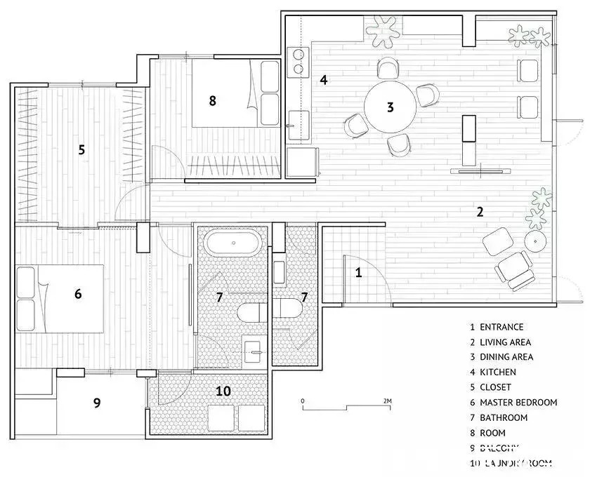
平面布置图

入户的玄关空间,在鞋柜的底部留出了足够宽敞的空间来摆放更换的鞋子和收纳盒,鞋柜中间也留出部分摆放钥匙、杂物的空间。

走过玄关之后是一个四合一的开放式空间,客厅、书房、餐厅和厨房都是连通起来的,以电视背景墙和柱子作为隔断。

电视背景墙只留下了电视宽的的空间,底部摆放黑色的电视柜,整个开放式空间内有着大量的绿植,搭配大白墙,显得简约而又自然。

餐厅和开放式的厨房集合,橱柜是靠着墙面设计的L型橱柜,原木风的餐桌椅搭配角落里的绿植和收纳架,实用又美观。

利用靠窗的位置来做了书房,柜子和长隔板的组合,用百叶帘作为窗帘,阳光被折叠之后,显得更加的柔和、舒适。

开放式的空间做了整体相似的设计,整个四合一的空间让人感觉宽敞而又明亮,让这套房子的采光也变得非常棒。

主卧室简洁而又大方,床头背景墙刷成了灰色,用小茶几来代替床头柜,卧室内部舍弃了柜子之后,显得更加的轻松、舒适。

收纳被集中在了主卧室一侧的衣帽间内,用做旧款的木门作为隔断,独立的衣帽间也是大部分屋主所羡慕的设计。

【 主卧室|130的北欧风二居室40年的老房,改得也太棒了!】主卫和次卫两个空间的设计大部分相同,区别就在于一个是淋浴,一个是浴缸,还有墙面的花砖装饰有所不同。
推荐阅读
- 屋主|56㎡小户型老房改造,小而美的设计!
- 地板|160㎡四居室,玄关比我家卧室都大,这才是真正的低调奢华有内涵
- 床头柜|95后姑娘的“穷装”卧室火了,环保又精致,软装的力量真强大
- 小房间|参观140㎡大婚房,朋友都夸餐边柜有档次,我却更喜欢主卧的飘窗
- 买房|二手房指导价意义非凡,主要有这4点,想购房的来看看
- 宋智雅|不只穿假货!宋智雅豪宅全是租的,公主风奢华住所都是TA在出钱供
- |龙吟师傅教你在卧室找到自己的桃花位
- 垃圾桶|家庭主妇:厨房地柜不要全打满,空一格更实用!后悔我家装太早了
- 银行|如果出现大规模的房贷断供现象,银行和业主将两败俱伤
- 杭州|仁恒置地楼盘窗户玻璃被减配 开发商:全体业主签字后再整改
