重点|190平方米的大平层,用流畅的动线,窥见别样的雅致
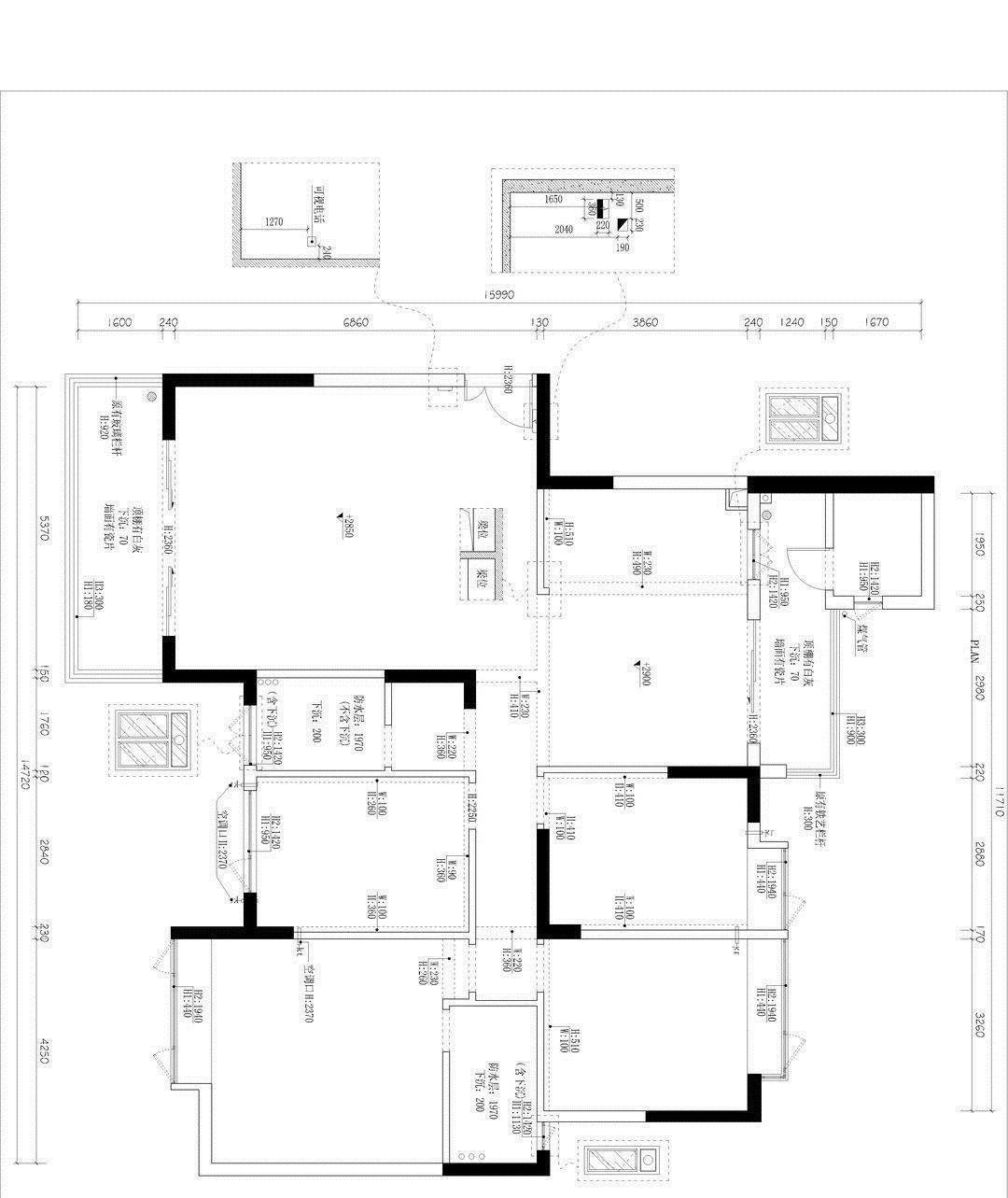
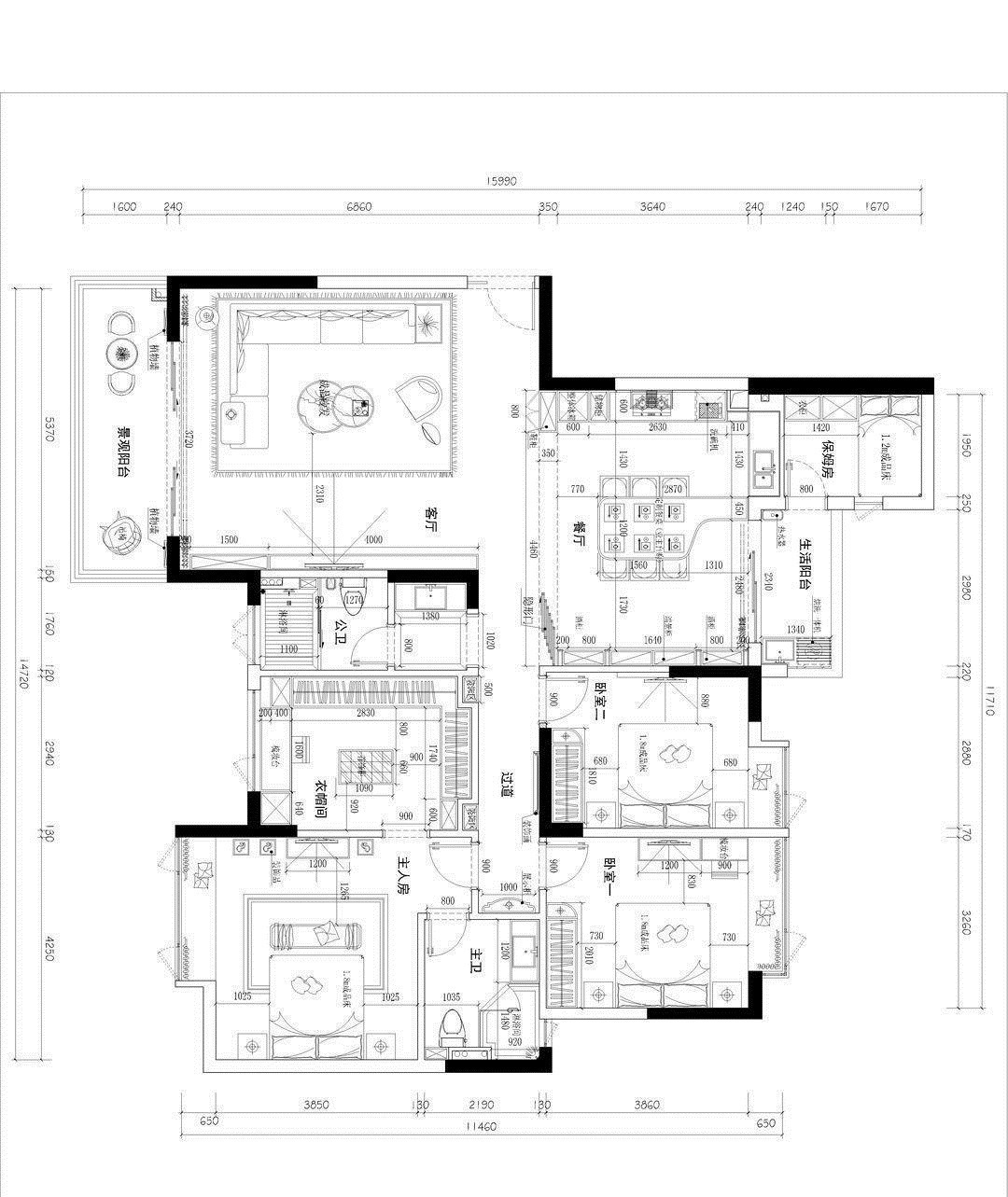
190平方米的大平层,用流畅的动线,窥见别样的雅致190㎡的大平层内,处处写满设计师的用心,将功能与美表达得淋漓尽致,流畅的动线将屋内的空间布景般分门别类,每一处都适得其所,如一抹诗意水墨。卧室的布局十分考究,满足屋主的实际使用和对美的诉求,通常被忽略的保姆间也考虑周到,侧方体现了屋主的用心,颜色的基调也趋于沉稳低调,没有浮华的铺设,偶尔的画作点缀也有了享受慢时光的味道。案例:宜居大平层居住成员:大人,小孩房屋面积:190㎡房屋类型:大坪数空间格局:3房2厅2卫主要建材:原生木饰/天然理石/金属与皮革【户型图】


房屋的面积趋近于普遍家庭首选,应三胎政策放出,这样的户型面积无疑是热宠,并排的次寝居室面积适中,即使未来用双床作为调整也富裕,房屋最吸睛为主人卧,将功能区面积分配最佳,刚刚好满足所需;其次为客厅与景观阳台的处理,巧妙地将内与外分割,开放式的餐厅有生活阳台的加入,避免了餐余之后气味弥漫的尴尬。【玄关】

设计重点:影绰地面呼应书柜书柜的加入,让原本狭长的单一空间有了书香气,质朴无雕琢的墙面,只用几盏筒灯点缀,影影绰绰于天然石材的地面倒映,两组书柜在其中显其优雅的内涵,尽头的玄关柜似乎成了配角儿,丛书便是主人的代表,这一方天地有了精神层面的升华与塑造。

【客厅】

设计重点:典雅化身的背景墙选用近似于鱼腹部颜色的大理石,铺设后的感觉明显有了宝玉般的滋润光泽,瞬间将客厅营造成为高贵典雅的化身,选用同色系的沙发组合以及地毯,将整个色调感赋予了宁静,一股自然力量恒生,复古的地灯映衬下更显其空间的大气浑然。【厨房】

设计重点:融入西式的开放餐厨空间L型布局是当下厨房常见形式,虽是开放餐厅但操作分区明确,充足的柜体收纳以及不同功能的嵌入式电器将其最大化应用日常。中间结合餐桌的设计,哑光处理显得格外冷静、低调,营造更灵活更实用的餐厨空间。【餐厅】

设计重点:独具个性“石”元素的运用表面带有矿石般的个性化肌理和粗糙的天然质感理石,使餐桌看起来纯朴加自然,散发着浓厚的艺术气息,又独具个性,配置的餐椅也以原生木加金属的现代设计,高高的酒柜设计实用大方,储物空间丰富,辅以暖色灯带,促其成为生活舞台的浪漫一隅。

【卫生间】

设计重点:打造星级质感的卫浴间同样延续天然石材为主调,肌理纹路呼应客厅的背景墙体,悬柜与墙收纳得以点睛,保证自然明亮度同时,定格了星级卫生间的视觉,干湿分离的淋浴区均靠近窗户,满足了室内水气的自然“呼吸”更会改善不必要的水气“逗留”,宽敞通透的空间更好的提供了日常打理之便利。【卧室】
推荐阅读
- 屋主|56㎡小户型老房改造,小而美的设计!
- 春节|如果能重来,阳台一定“9不装”,并非迷信,是过来人的经验教训
- 装修|乔迁新房3月以泪洗面!当初的不理智,连犯15个极品装修坑!作孽
- 现代风|168㎡现代风,带着浓郁的归属感与愉悦感
- 深色|155㎡简约风,承载着三代人的生活,不花哨让家务少一半
- 混淆感|146㎡北欧经典白色三居室,诠释令人心醉的优雅
- 造纸|生活用纸,黄卫生纸真的好于白色卫生纸吗?来听造纸员工怎么说!
- 对象|廉租房和公租房的有什么区别?
- 饱和度|173㎡轻奢新中式,古典和现代的碰撞,唯美浪漫!
- 小钱|游点好笑!收手机的新方式,一抓一个准!这老师怕是柯南看多了?
